Der Siden
Gemeinden
Technische Infos
Download-Portal
Kontakt
Notfall
Besichtigungen
Links
Dienstleistungsantrag
Besichtigungen
Links
Dienstleistungsantrag
Der Siden
Rolle des SIDEN
Unsere Abteilungen
Organigramm
Gemeinden
Technische Infos
Abwassersammlung
Mechanische Kläranlagen
Biologische Kläranlagen
Download-Portal
Bilanz der Abwasserreinigung
Allgemein zugängliche Unterlagen
Geschützte Unterlagen
Unterlagen für Mitgliedsgemeinden
Statuten
Kontakt
Kontakt
Anfahrtsplan
Dienstleistungsantrag
Besichtigungen
Notfall
Notfall
Kläranlage Consdorf
Einführung
Details und Kosten
Fotos
Pläne
Unterlagen
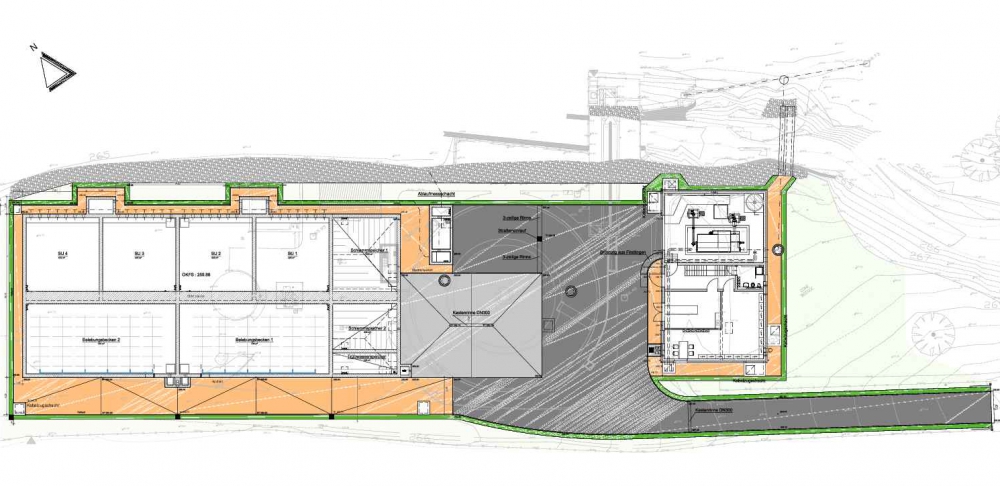
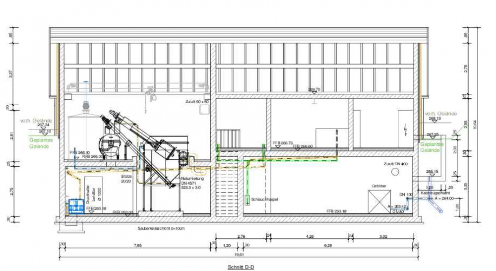
Pläne