Der Siden
Gemeinden
Technische Infos
Download-Portal
Kontakt
Notfall
Besichtigungen
Links
Dienstleistungsantrag
Besichtigungen
Links
Dienstleistungsantrag
Der Siden
Rolle des SIDEN
Unsere Abteilungen
Organigramm
Gemeinden
Technische Infos
Abwassersammlung
Mechanische Kläranlagen
Biologische Kläranlagen
Download-Portal
Bilanz der Abwasserreinigung
Allgemein zugängliche Unterlagen
Geschützte Unterlagen
Unterlagen für Mitgliedsgemeinden
Statuten
Kontakt
Kontakt
Anfahrtsplan
Dienstleistungsantrag
Besichtigungen
Notfall
Notfall
Regenüberlaufbecken mit Pumpwerk "Monopol"
Einführung
Details und Kosten
Fotos des Bauwerkes
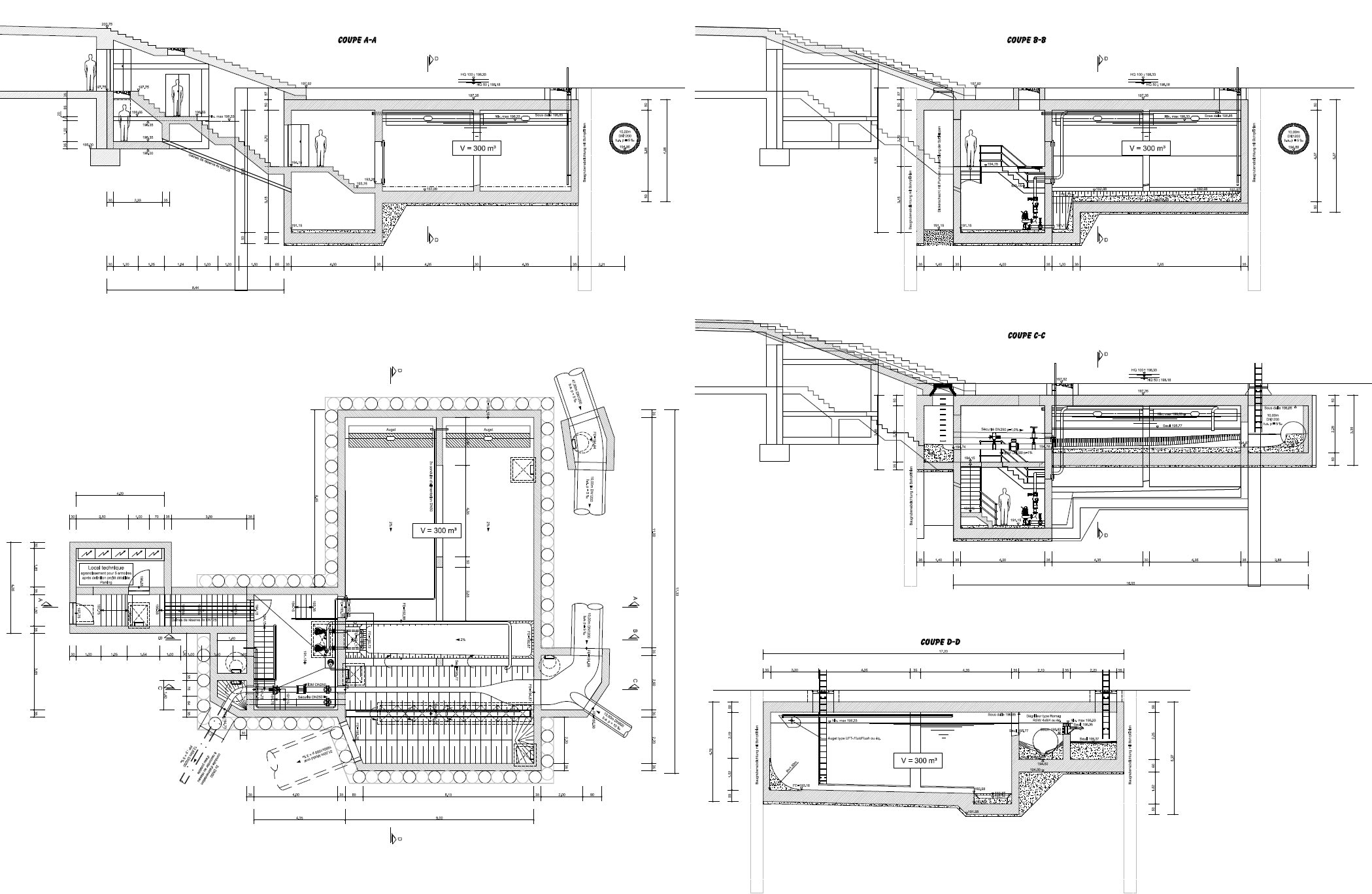
Pläne des Bauwerkes
Pläne des Bauwerkes