Fotobanner zur Präsentation der Kläranlage

Regenüberlaufbecken Ettelbruck-Clinique

               
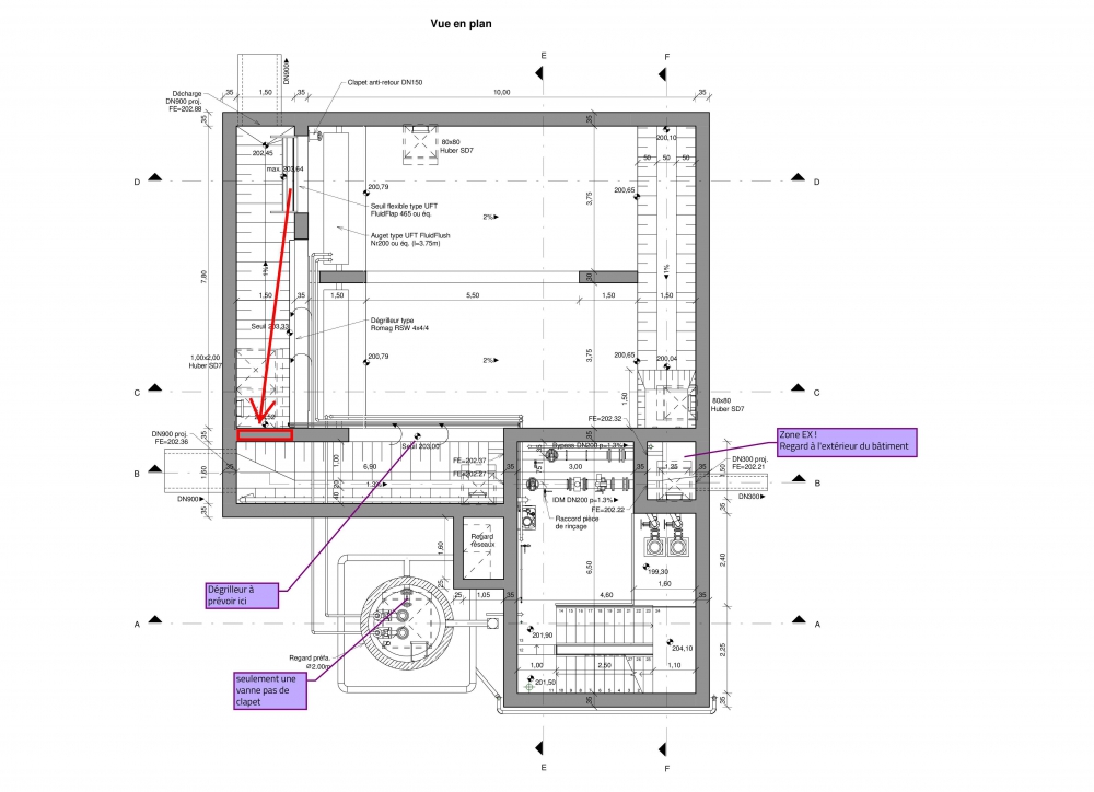
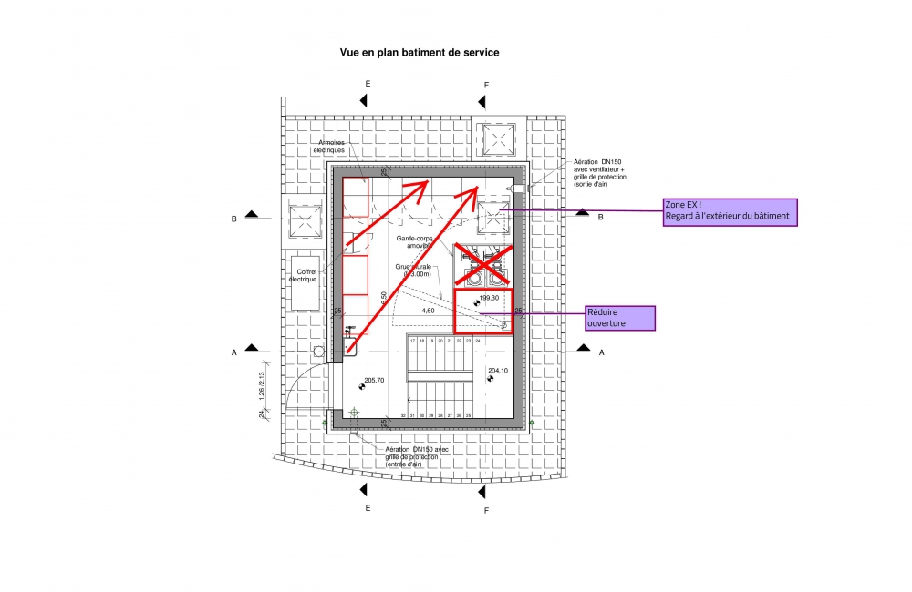
Lageplan im PDF-Format