Bannière photo présentant l'ouvrage

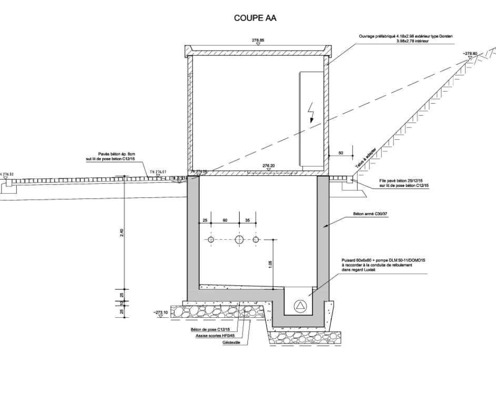
Regard à vannes Roost Luxlait