Fotobanner zur Präsentation der Kläranlage

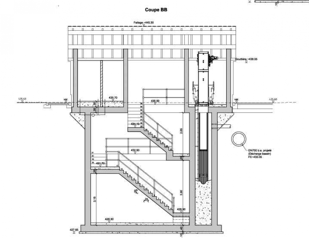
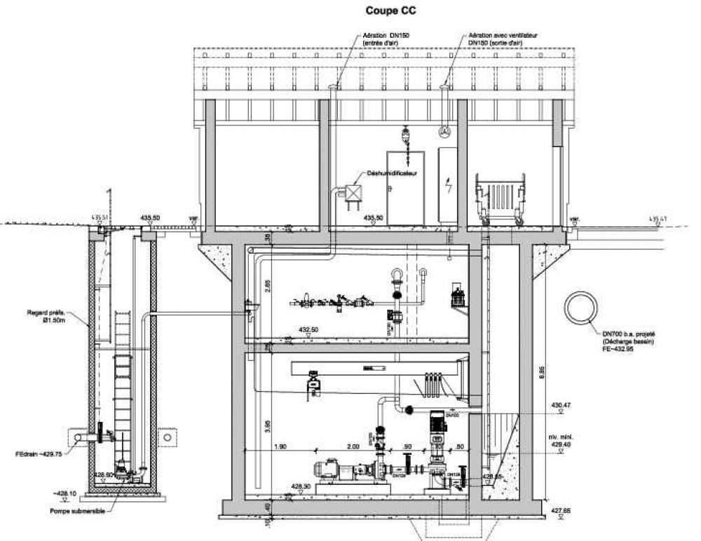
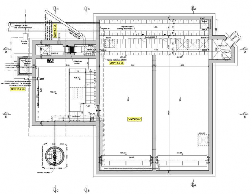
Regenüberlaufbecken mit Pumpwerk in Boulaide-Boellerbuch

Lageplan im PDF-Format