Le Siden
Communes
Infos techniques
Centre de téléchargement
Contact
Urgence
Visites
Liens
Demandes de prestations
Visites
Liens
Demandes de prestations
Le Siden
Rôle du SIDEN
Nos services
Organigramme
Communes
Infos techniques
Collecte des eaux usées
Stations d'épuration mécaniques
Stations d'épuration biologiques
Centre de téléchargement
Bilans sanitaires
Documents grand-public
Documents sécurisés
Documents pour communes-membres
Statuts
Contact
Contact
Plan d'accès
Demandes de prestations
Visites
Urgence
Urgence
Bassin d'orage Ettelbruck-Clinique
Introduction
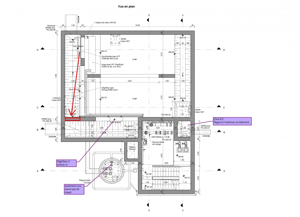
Plans
Plans