Bannière photo présentant l'ouvrage

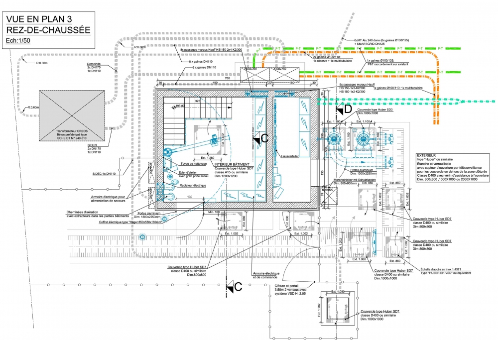
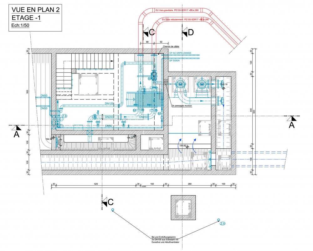
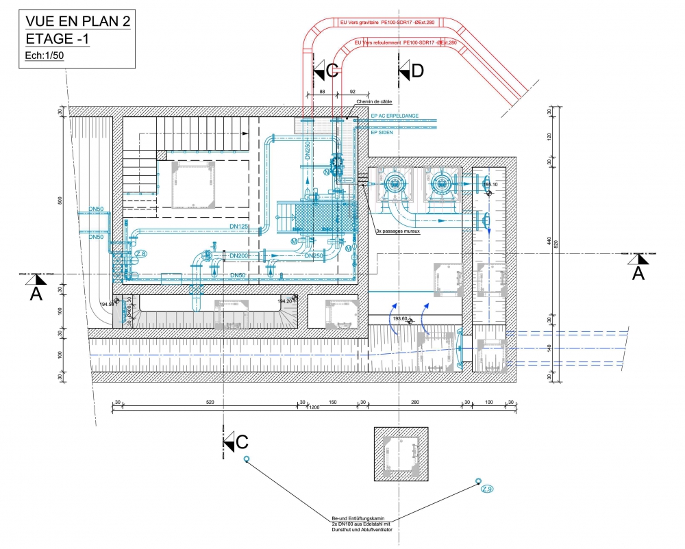
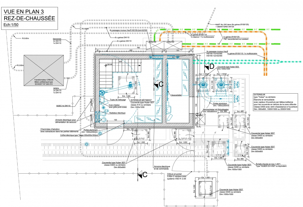
Bassin d'orage et stations de pompage "Ierpeldénger Draieck"

                            


plan de localisation en format PDF