Bannière photo présentant l'ouvrage

Bassin d'orage avec station de pompage Ettelbruck-Sud

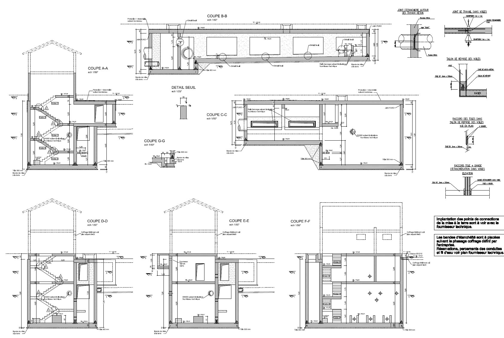
Plans de l'ouvrage

         


plan de localisation en format PDF