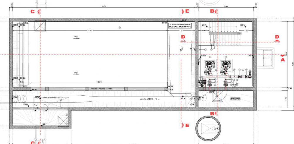
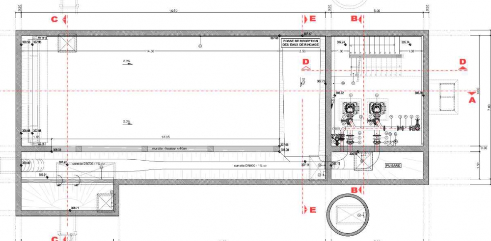
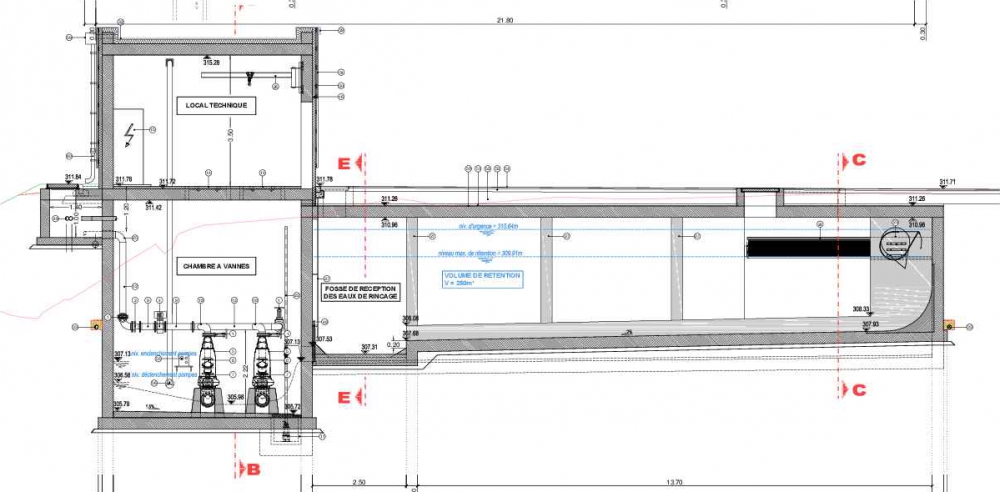
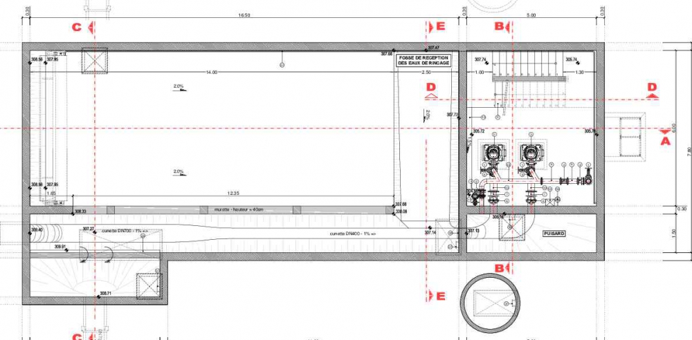
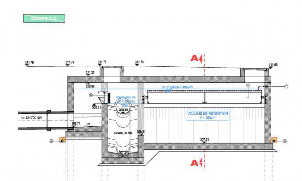
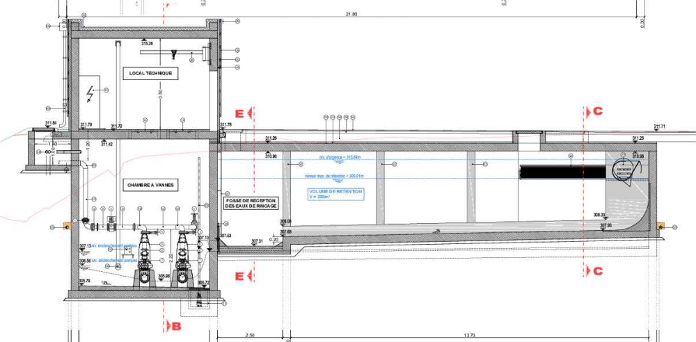
Bâtiment technique

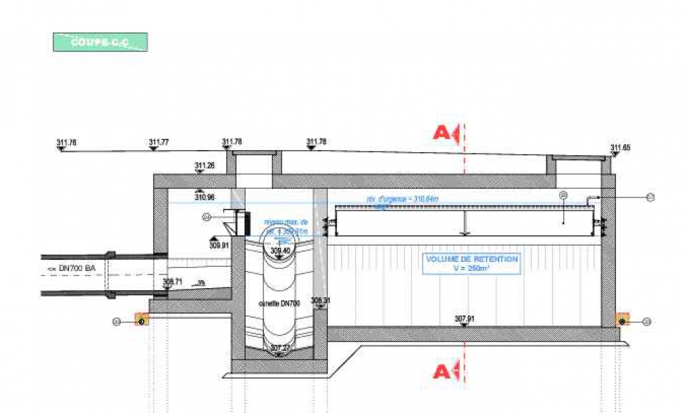
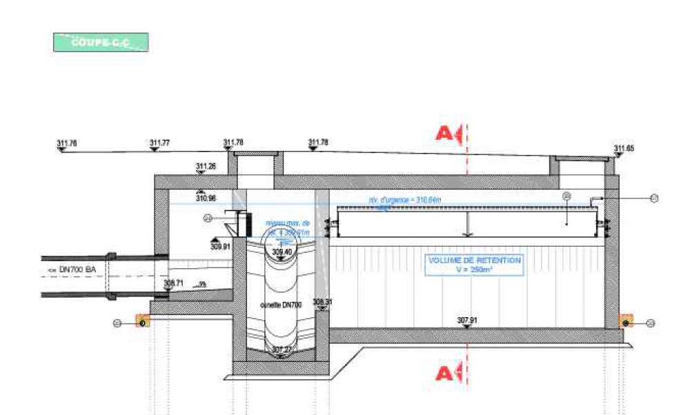
Bassin d'orage et station de pompage Reuland

plan de localisation en format PDF