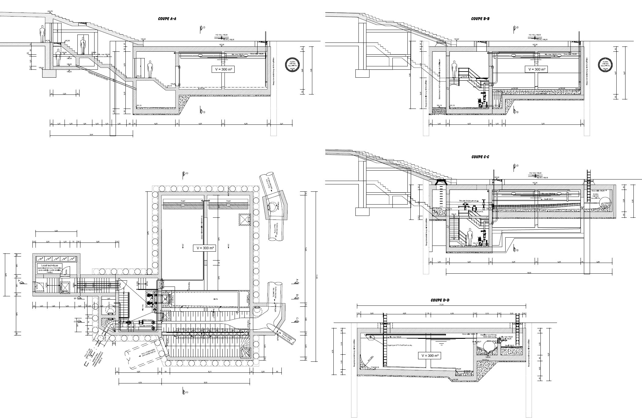
Bannière photo présentant l'ouvrage

bassin d'orage avec station de pompage "Monopol"

Plans de l'ouvrage

     


plan de localisation en format PDF