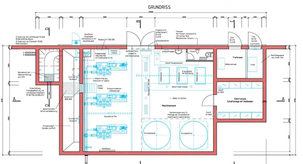
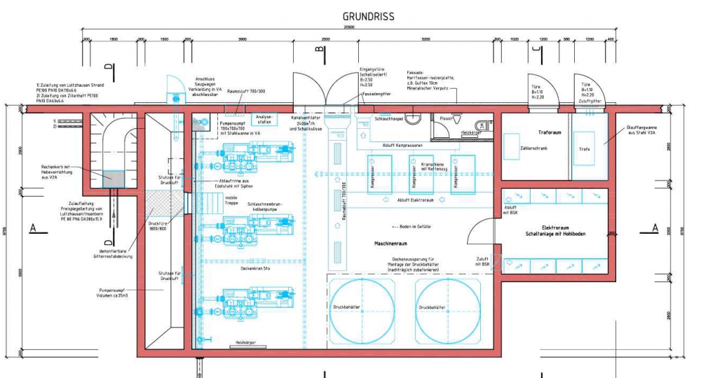
Bâtiment technique

Bassin d'orage et station de pompage Lultzhausen

plan de localisation en format PDF