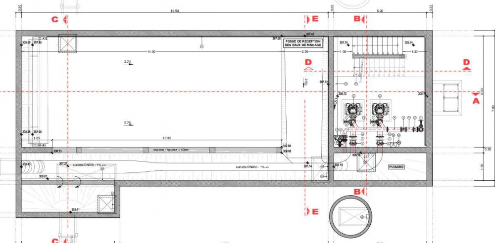
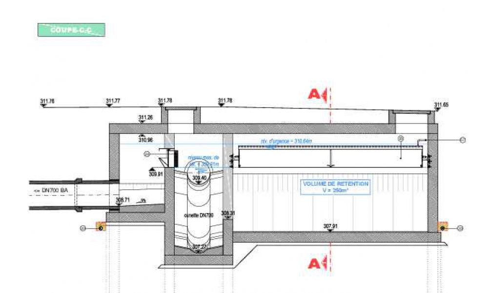
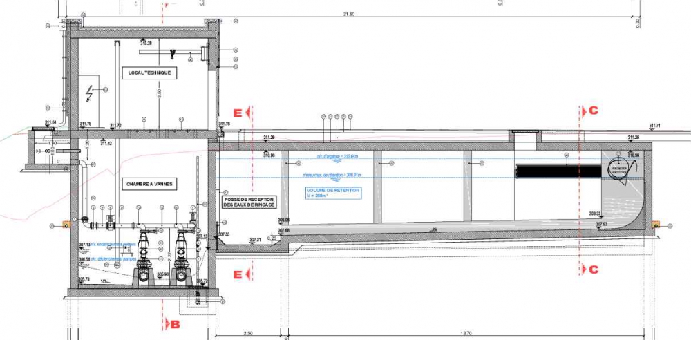
Betirebsgebäude

Regenüberlaufbecken mit Pumpwerk Reuland

Lageplan im PDF-Format