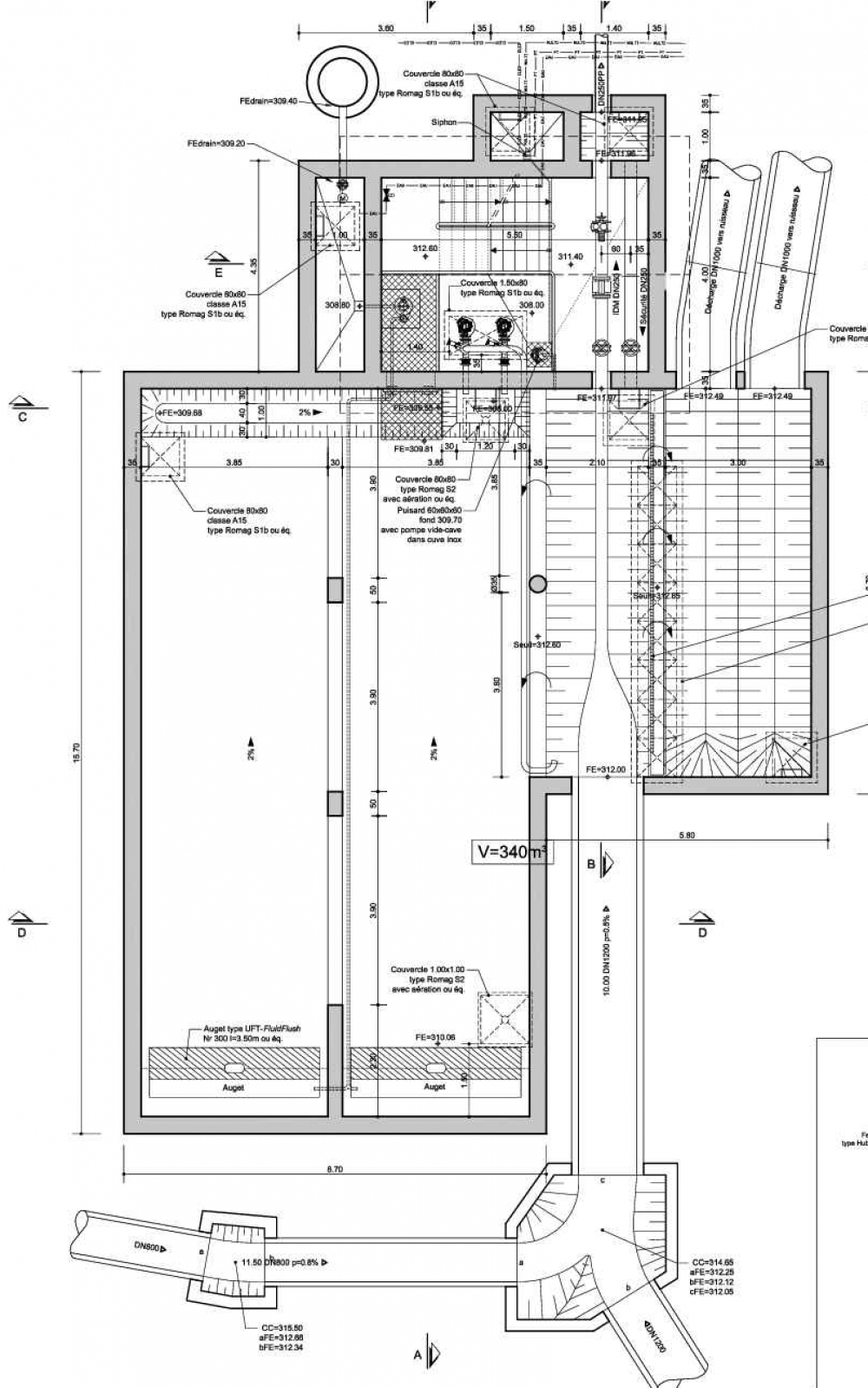
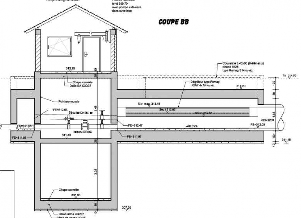
Betriebsgebäude

Regenüberlaufbecken mit Pumpwerk Mertzig-École

Lageplan im PDF-Format