Techniashes Gebäude (Außenansicht)

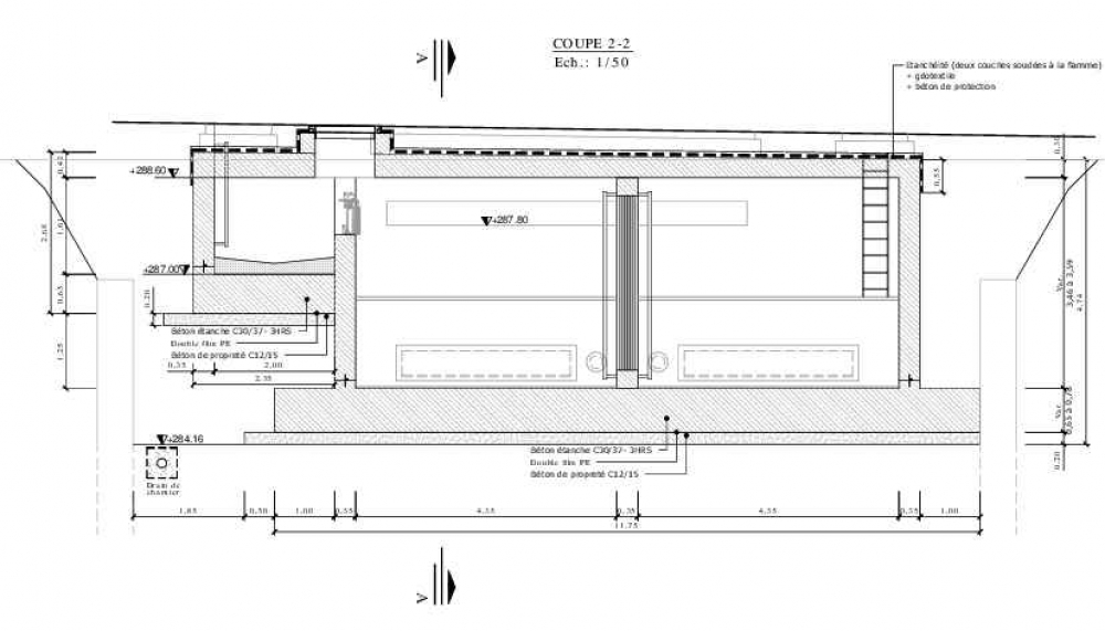
Regenüberlaufbecken mit Pumpwerk Niederfeulen 2

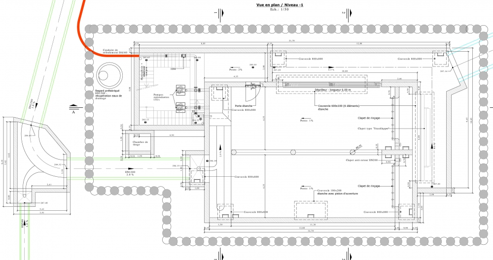
Lageplan im PDF-Format