Fotobanner zur Präsentation der Kläranlage

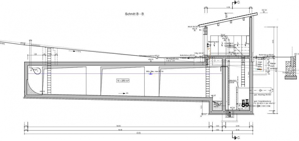
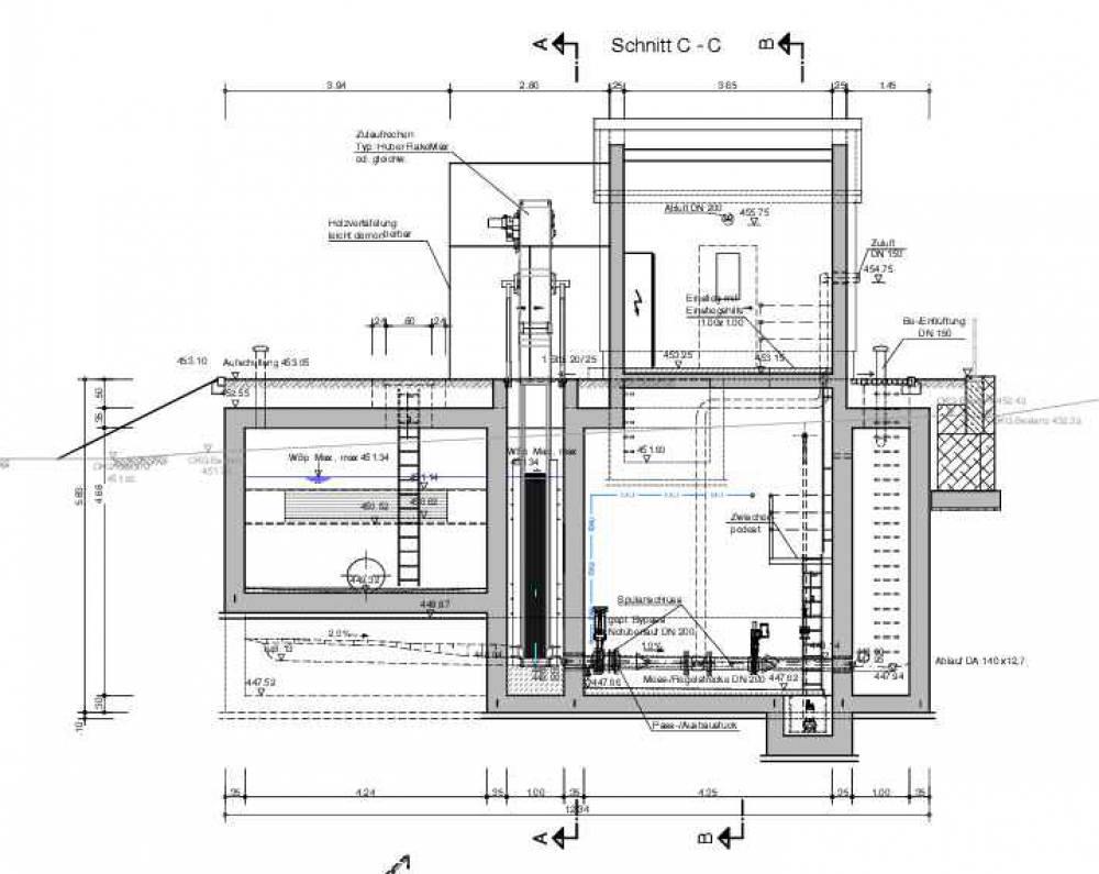
Regenüberlaufbecken Holtz-Bichel

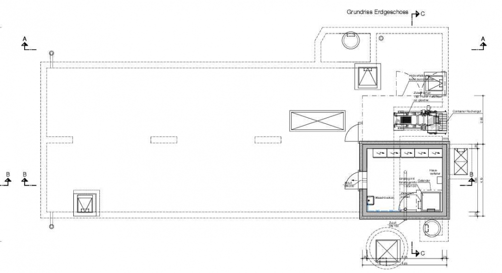
Lageplan im PDF-Format