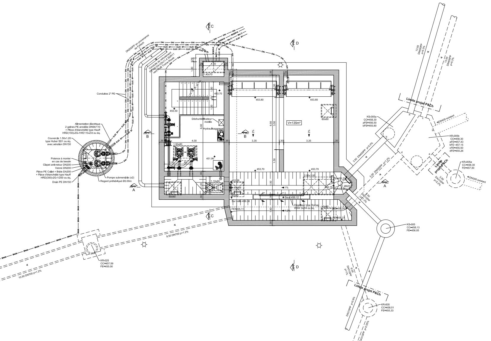
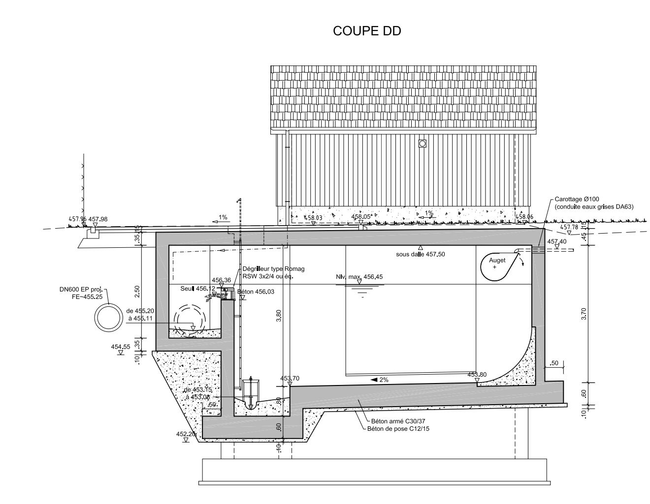
RÜB Allerborn

Regenüberlaufbecken mit Pumpwerk in Allerborn