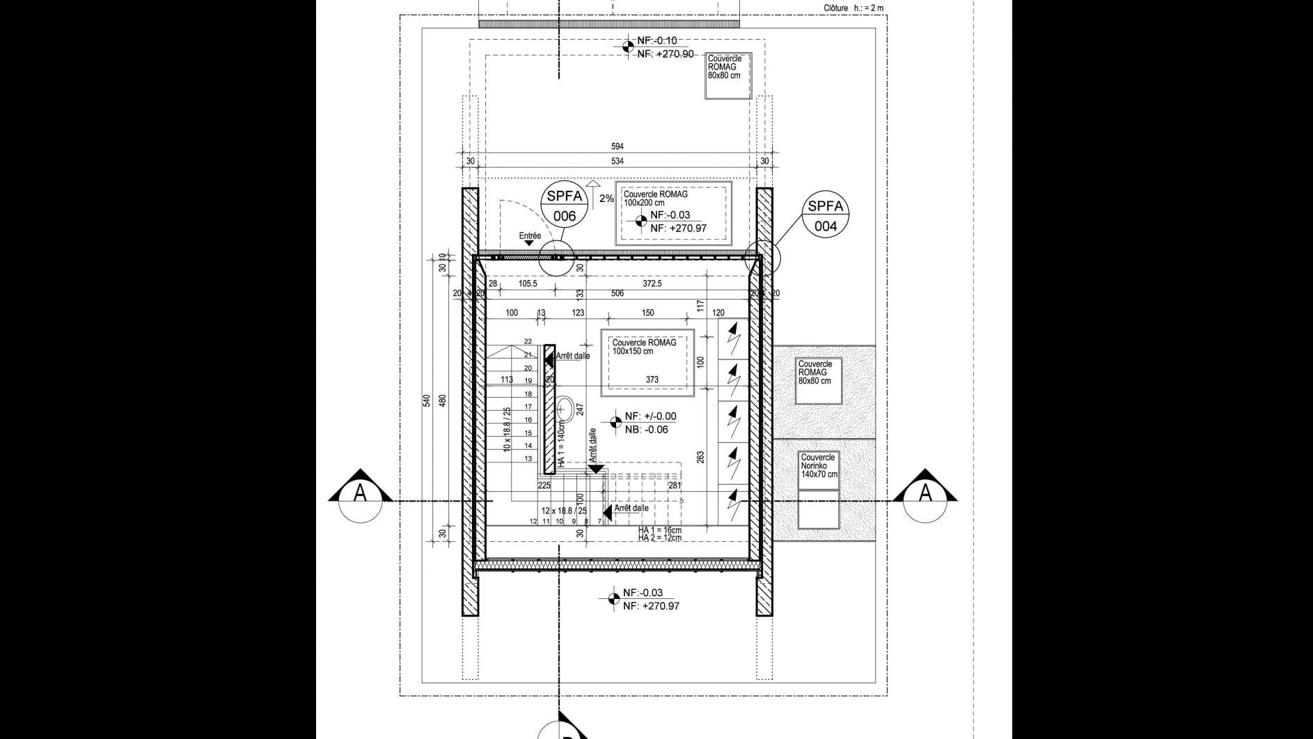
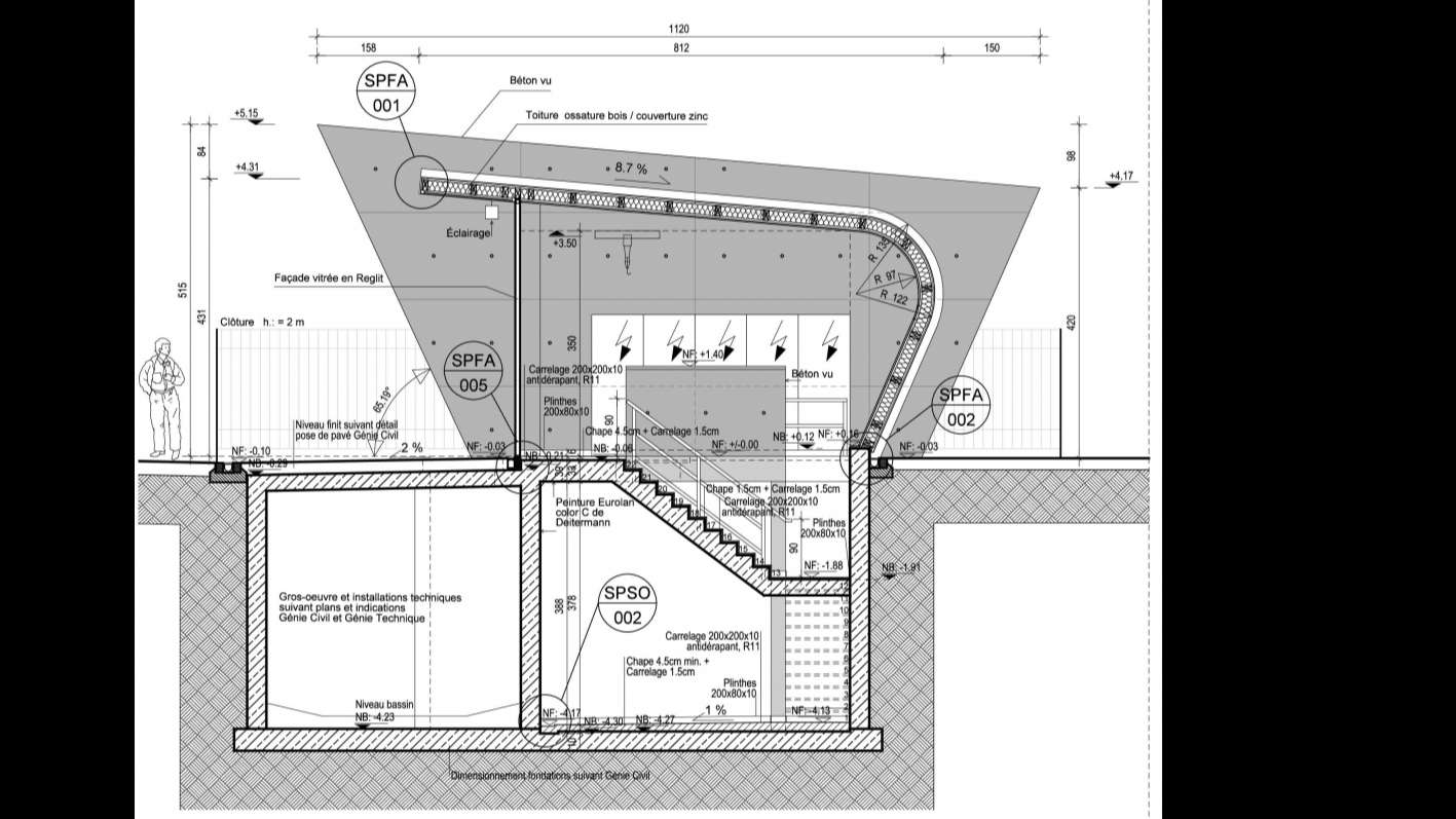
Bâtiment technique (Vue extérieur)

Station de pompage Roost 2 Creos