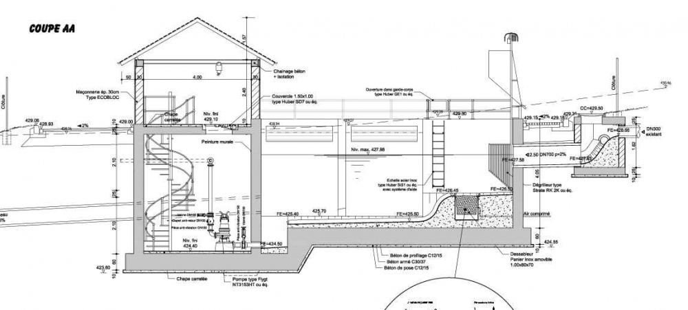
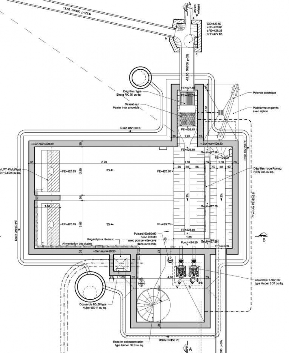
Bâtiment technique

Bassin d'orage et station de pompage Boulaide-Bauschelbuch

plan de localisation en format PDF