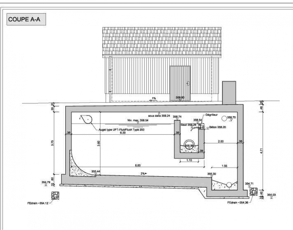
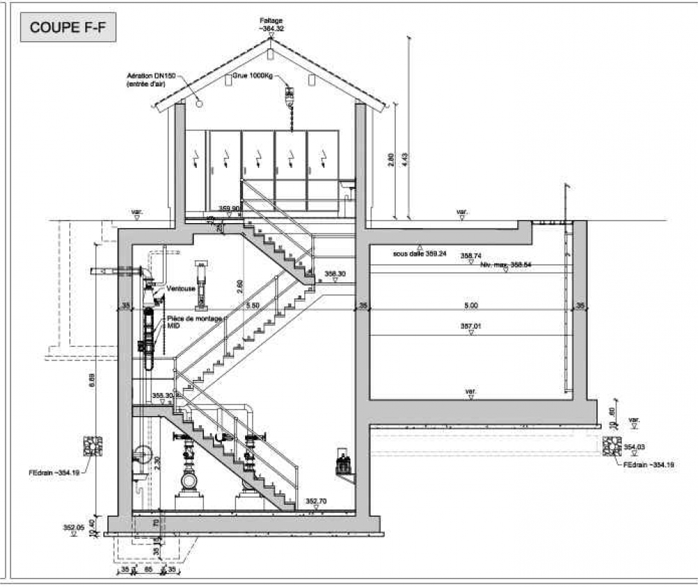
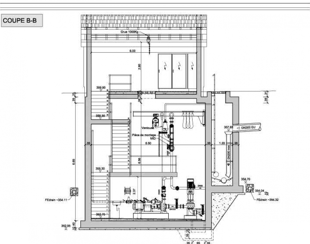
Bâtiment technique (Vue extérieure)

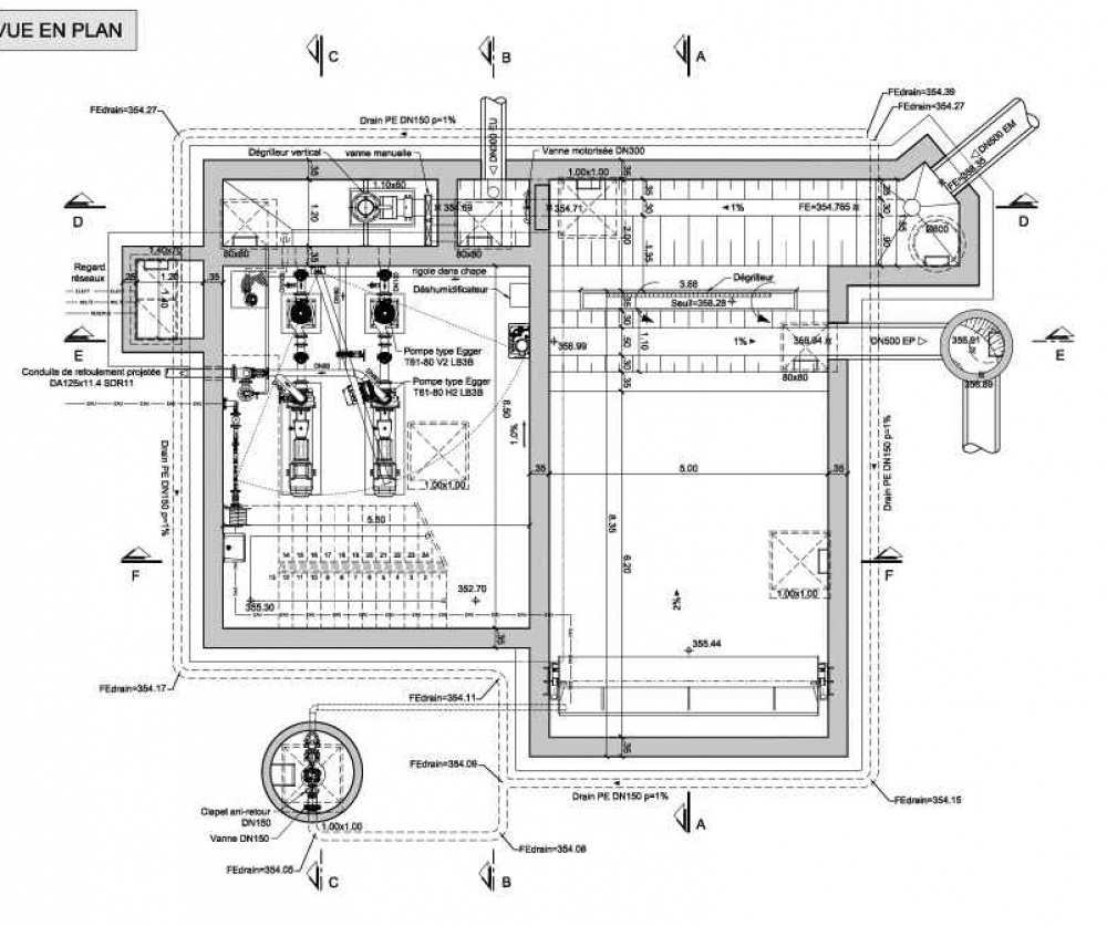
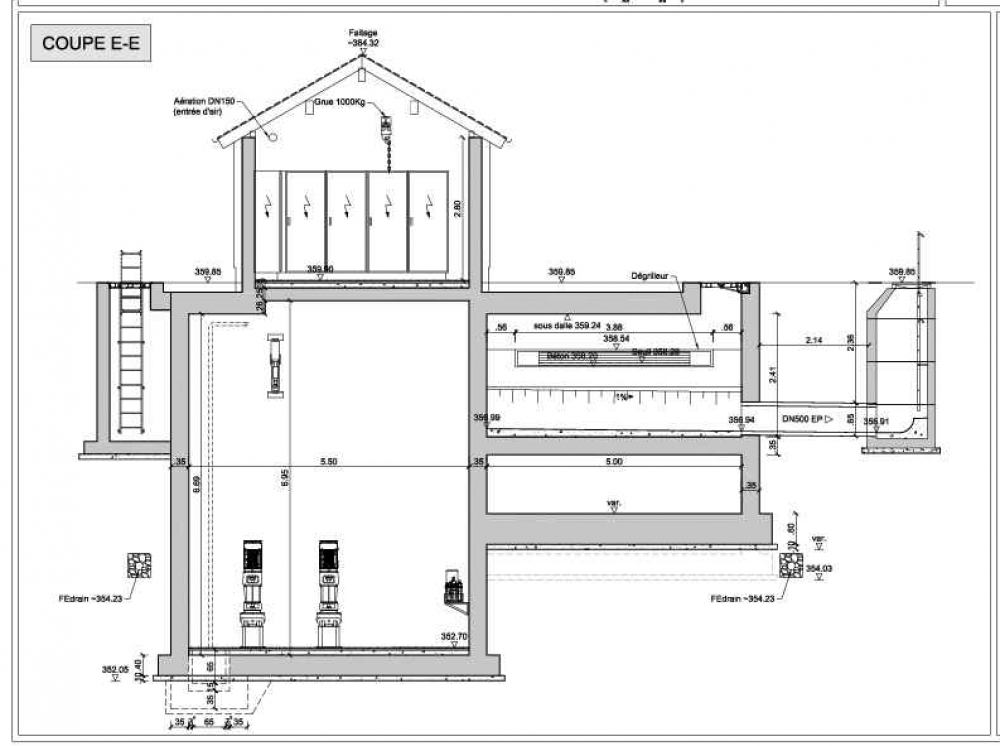
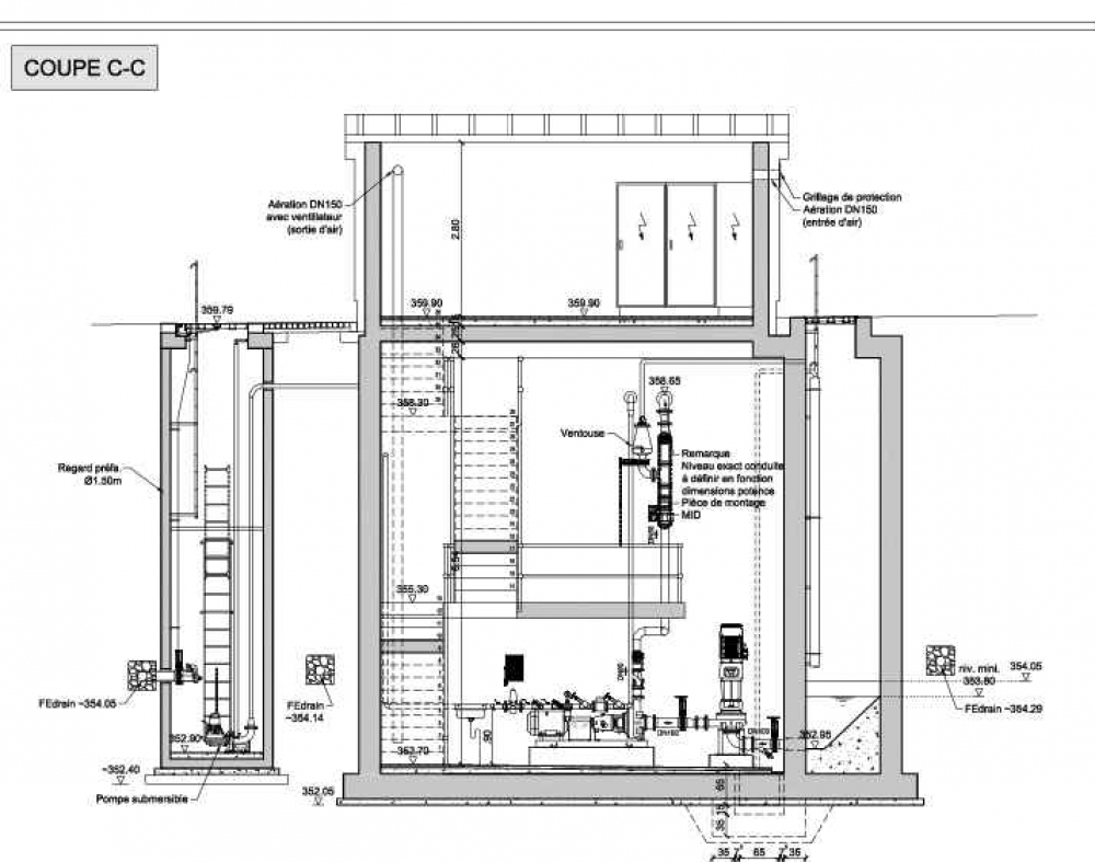
Bassin d'orage et station de pompage Mecher

plan de localisation en format PDF