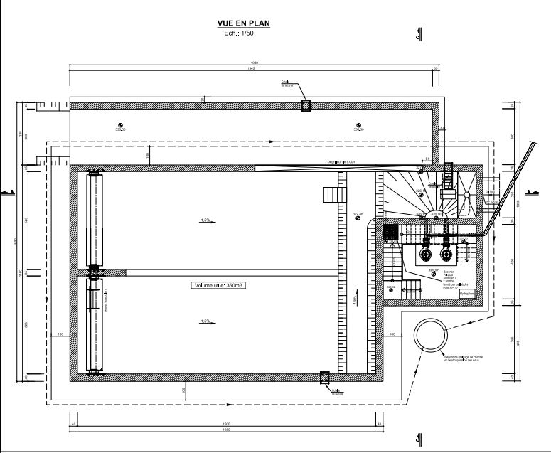
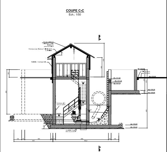
Bâtiment technique

Bassin d'orage et station de pompage Grosbous

Plans


                       


plan de localisation en format PDF