Bannière photo présentant l'ouvrage

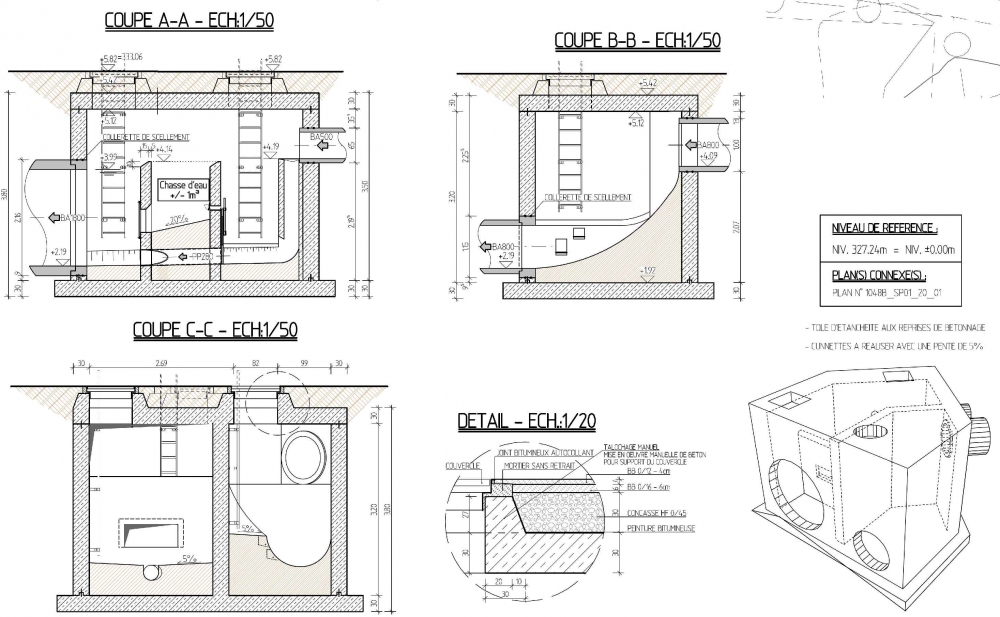
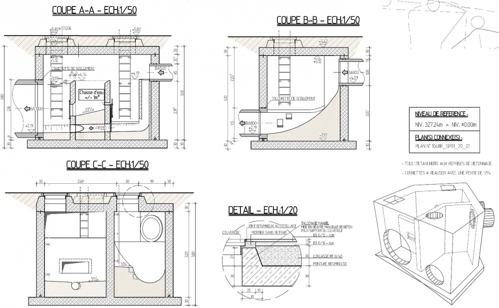
Bassin d'orage avec station de pompage à Colbette

plan de localisation en format PDF