Passer menu
Le Siden
Rôle du SIDEN
Nos services
Organigramme
Communes
Infos techniques
Collecte des eaux usées
Stations d'épuration mécaniques
Stations d'épuration biologiques
Téléchargement
Bilans sanitaires
Documents grand-public
Documents sécurisés
Documents pour communes-membres
Statuts
Vidange fosses privées
Contact
Contact
Plan d'accès
Demandes de prestations
Visites
Urgence
Urgence
Jobs
Visites
Liens
Demandes de prestations
Plan du site
Politique de confidentialité
Le Siden
Communes
Infos techniques
Téléchargement
Vidange fosses privées
Contact
Urgence
Jobs
Visites
Liens
Demandes de prestations
Plan du site
Politique de confidentialité
Bassin d'orage et station de pompage de Holtz-Bowendelt
Introduction
Détails et coûts
Photos
Plans
Plans
Vue en plan Sous-sol
Vue en plan Sous-sol
Vue en plan Rez-de-chaussée
Vue en plan Rez-de-chaussée
Coupe B-B
Coupe B-B
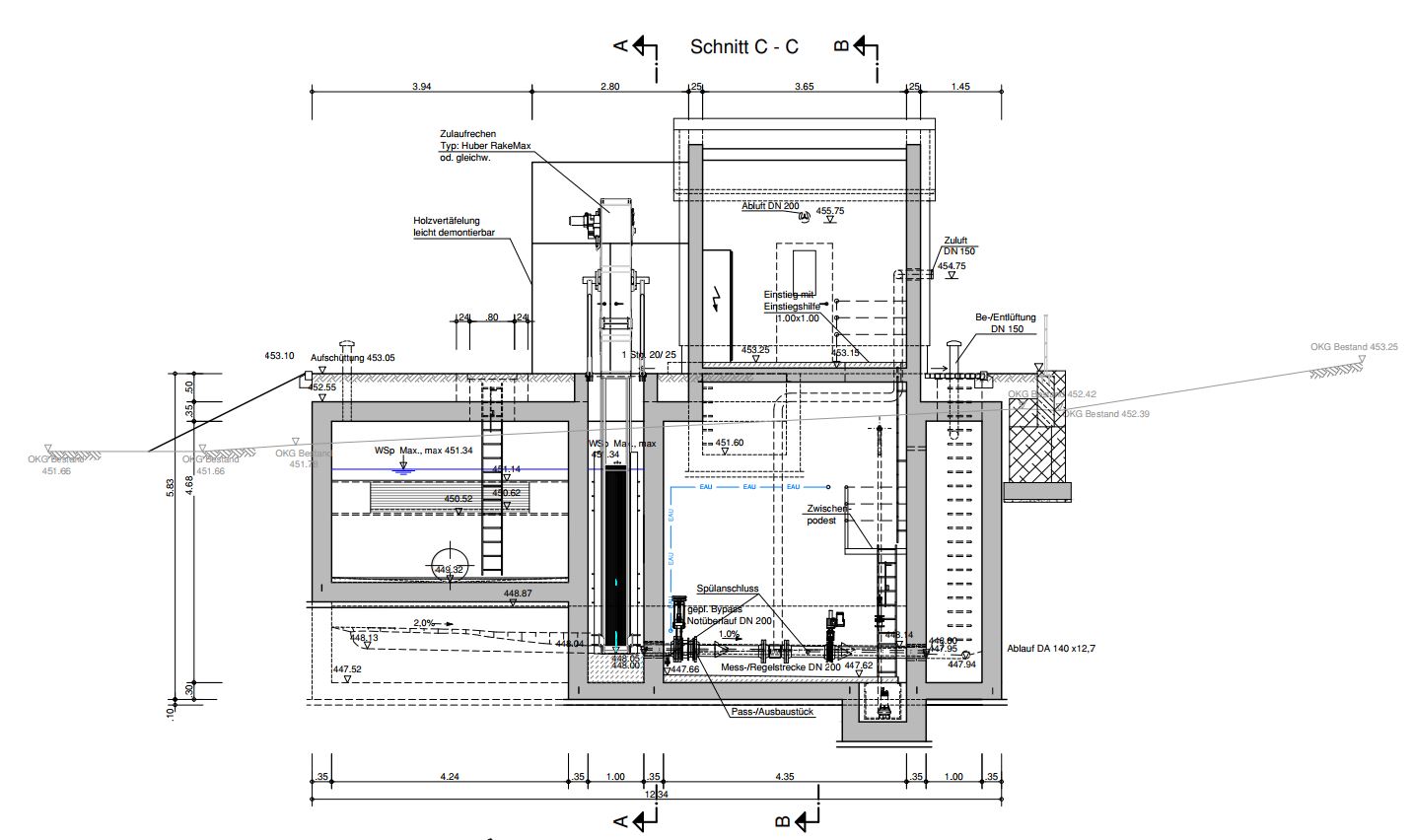
Coupe C-C
Coupe C-C