Fotobanner zur Präsentation der Kläranlage

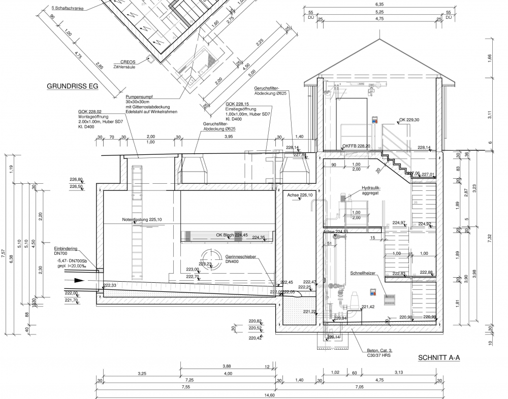
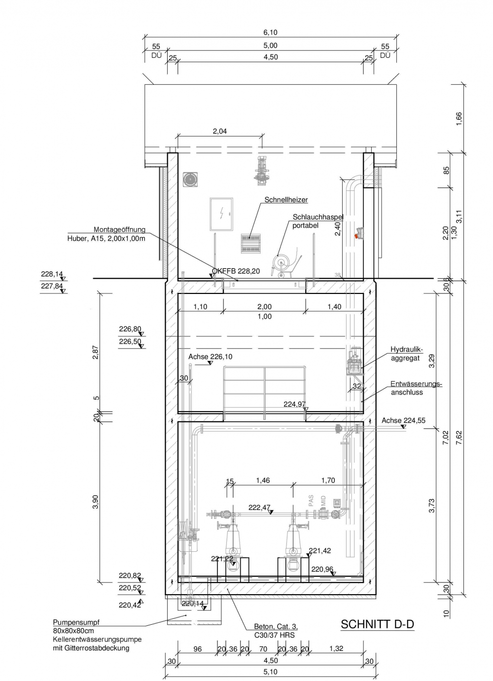
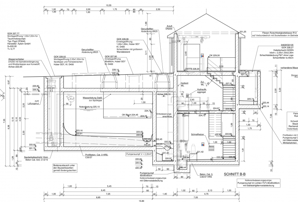
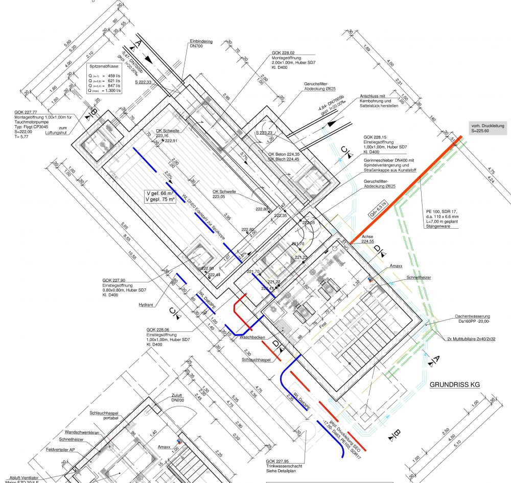
Regenüberlaufbecken mit Pumpwerk von Stolzembourg

Lageplan im PDF-Format