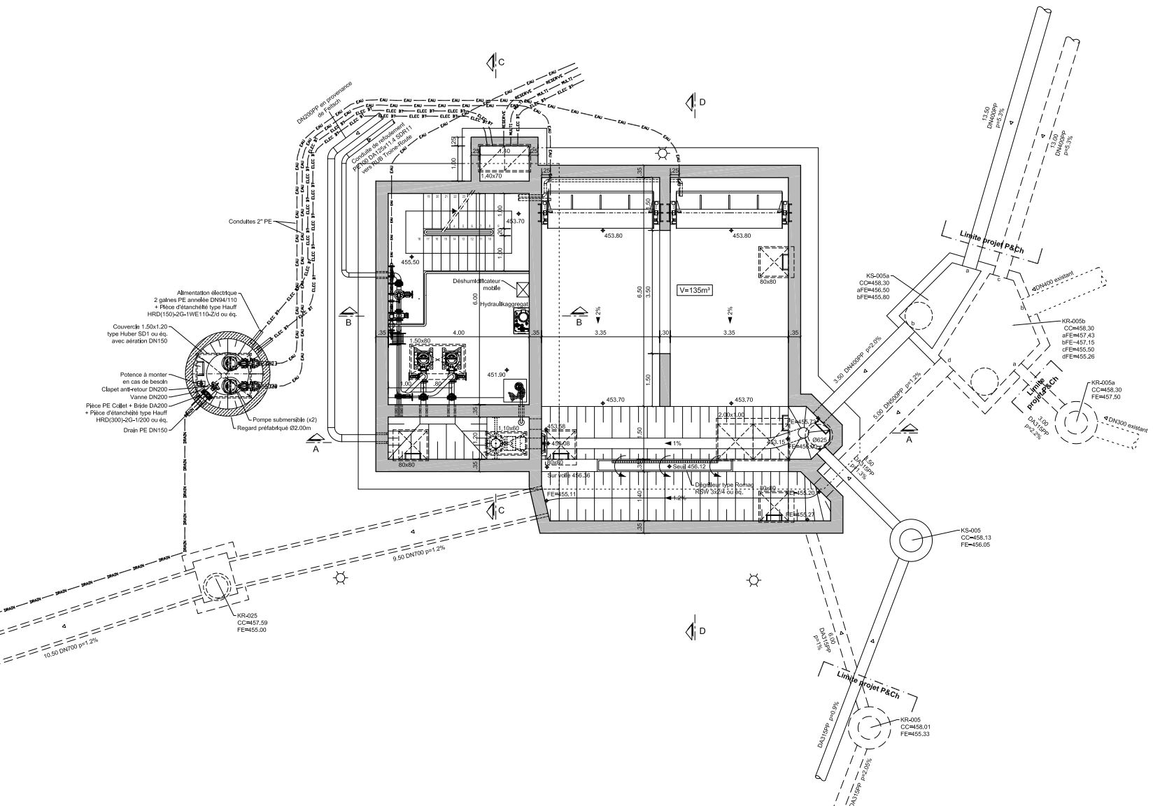
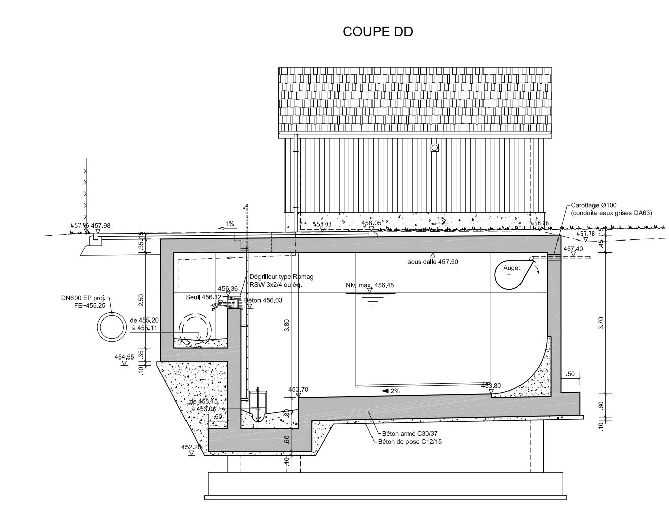
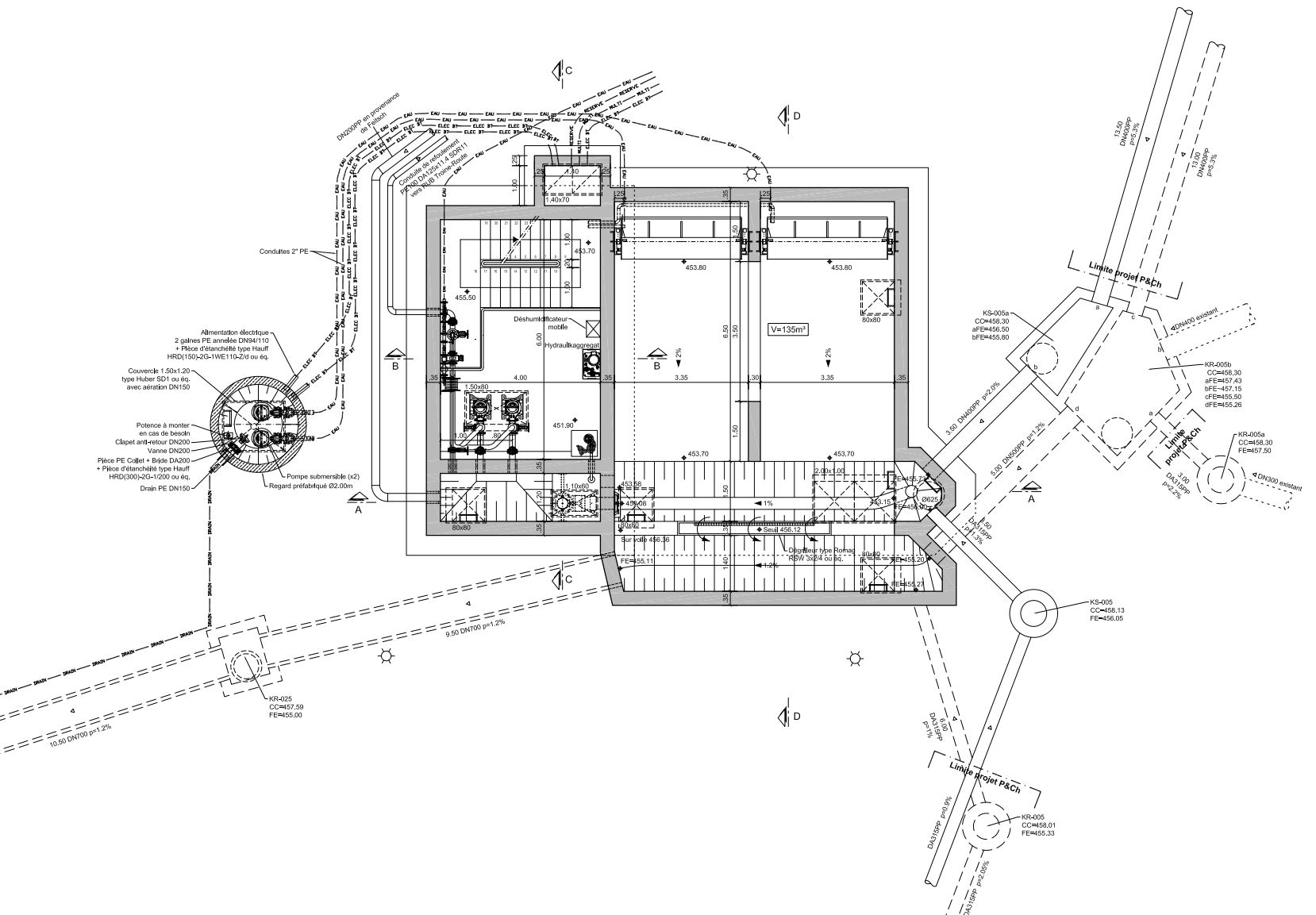
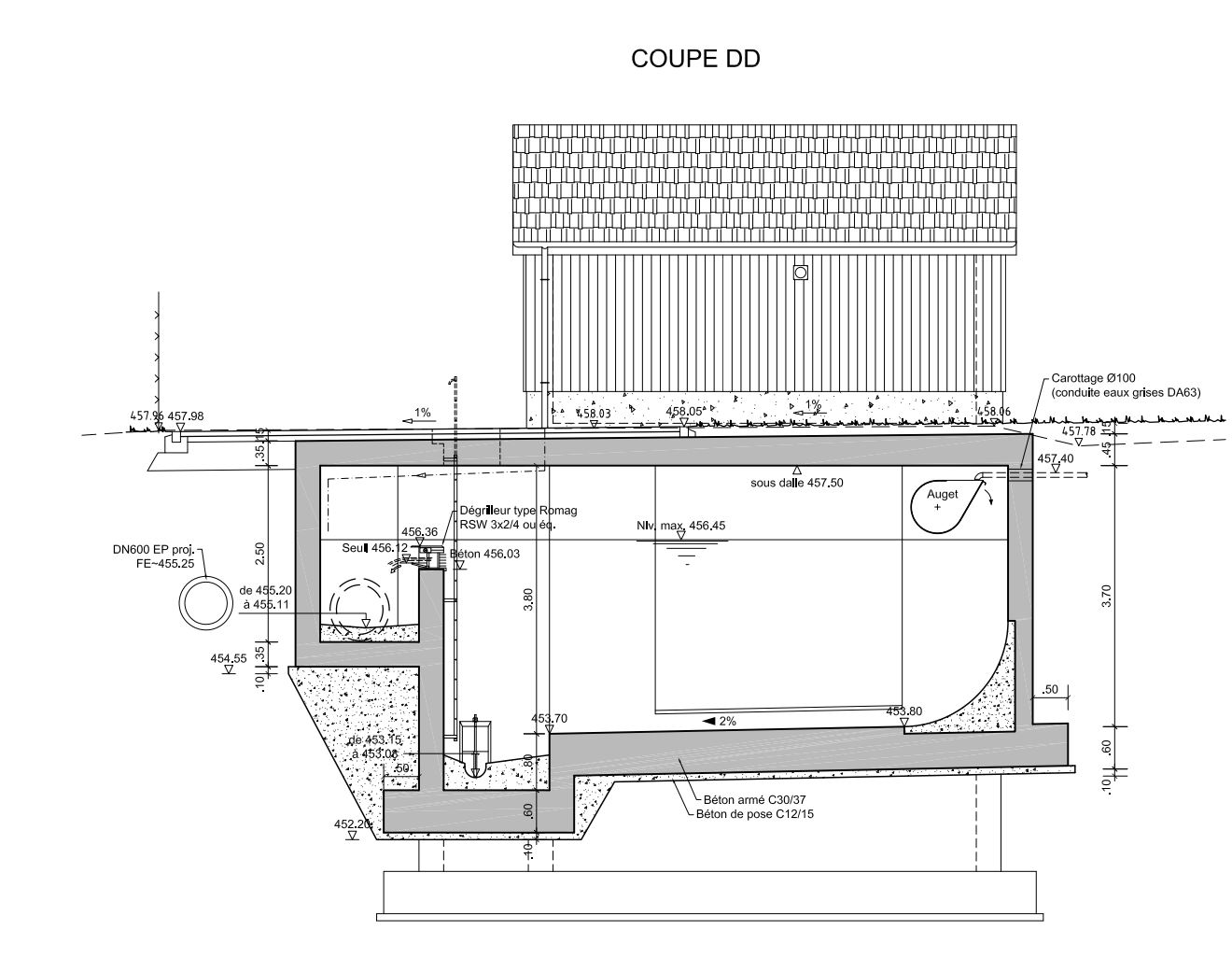
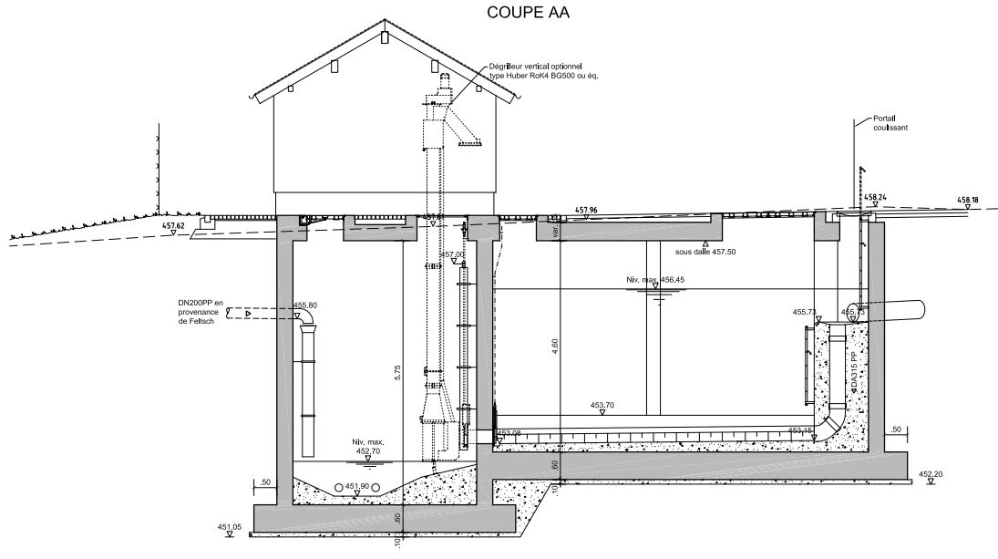
BO Allerborn

Bassin d'orage avec station de pompage à Allerborn