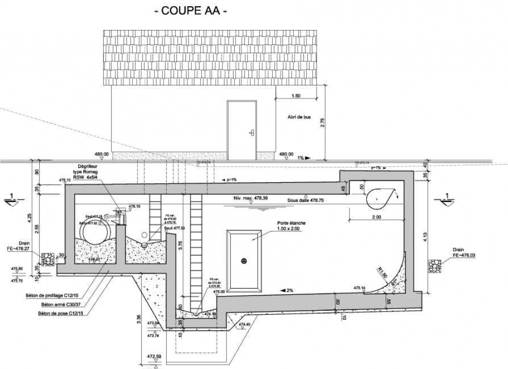
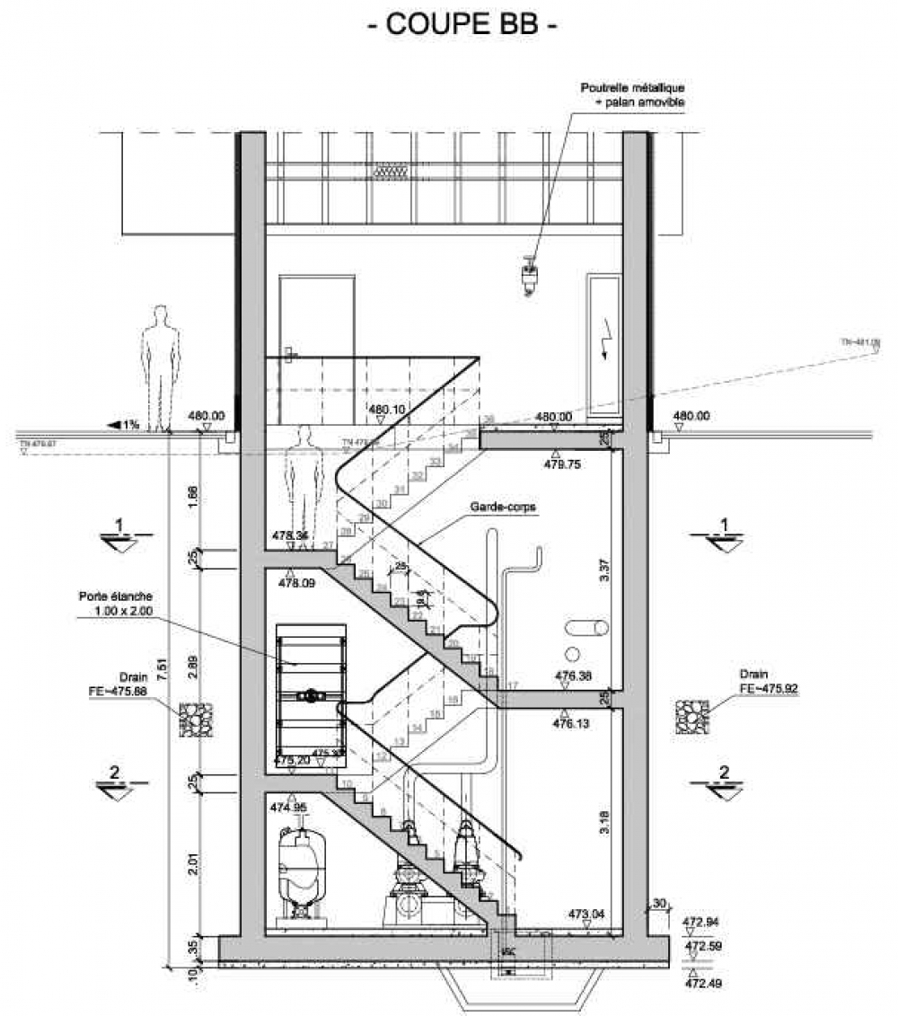
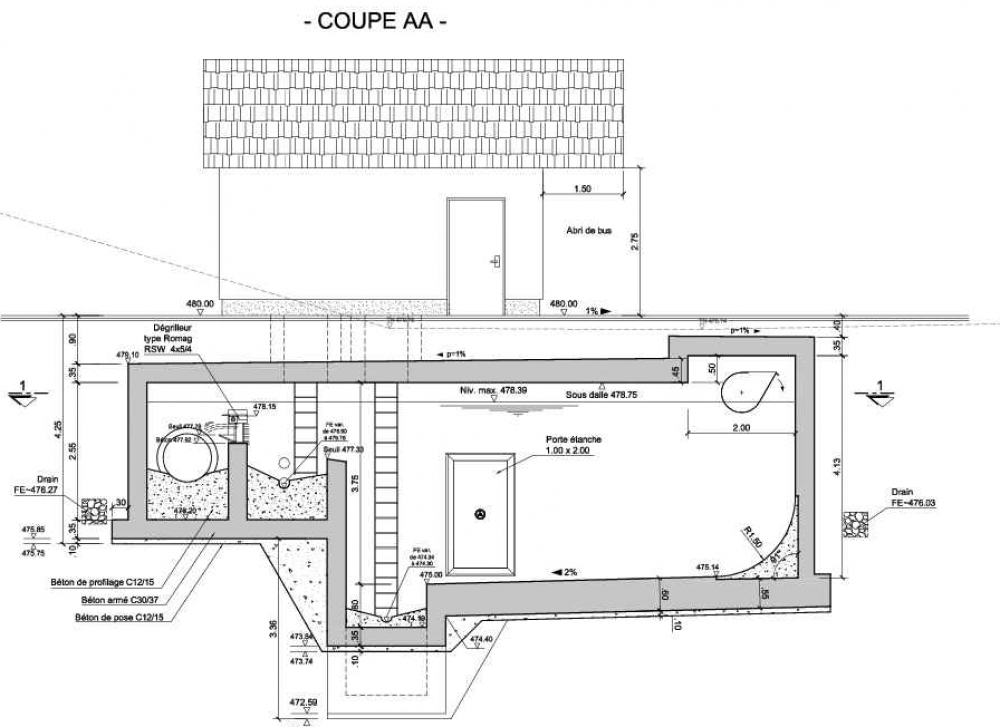
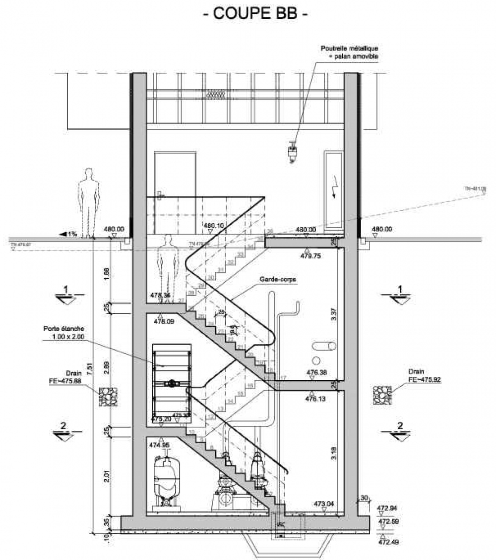
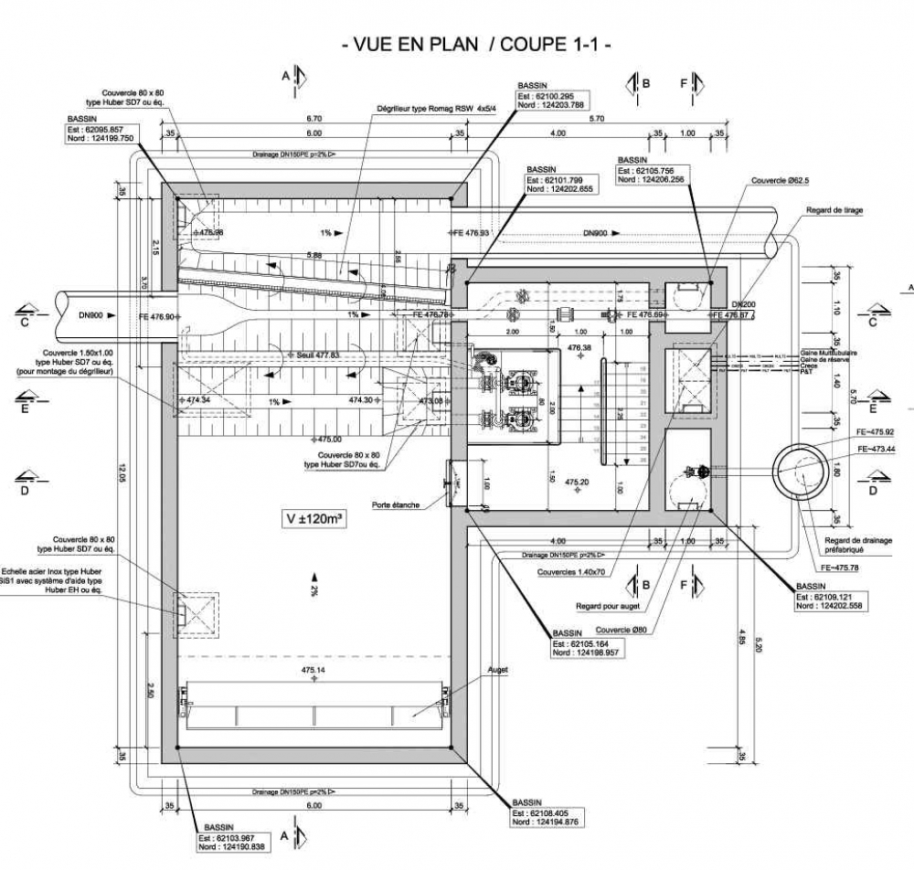
BO + SP Wincrange

Bassin d'orage avec station de pompage de Wincrange