Bannière photo présentant l'ouvrage

Bassin d'orage Diekirch - Camping

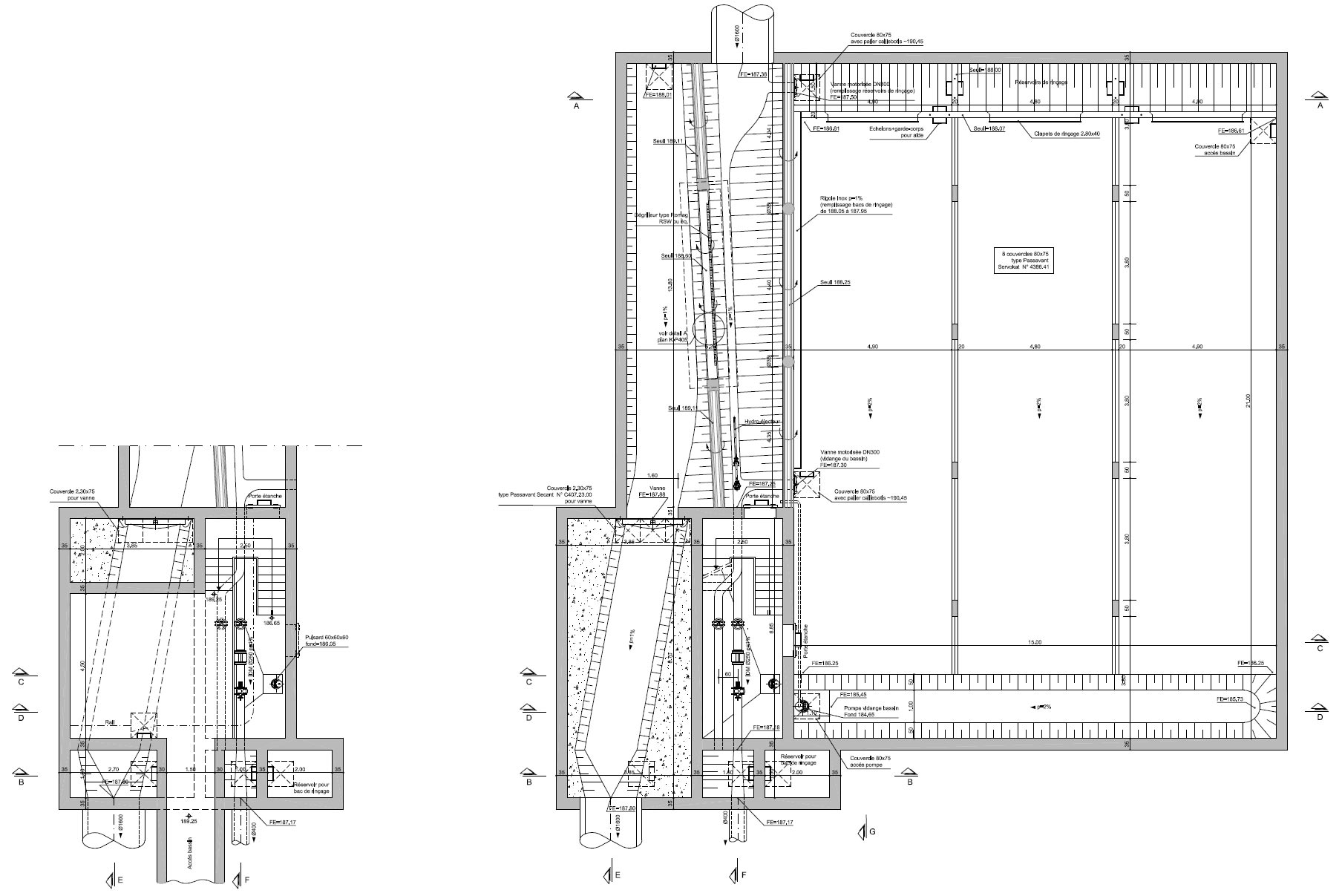
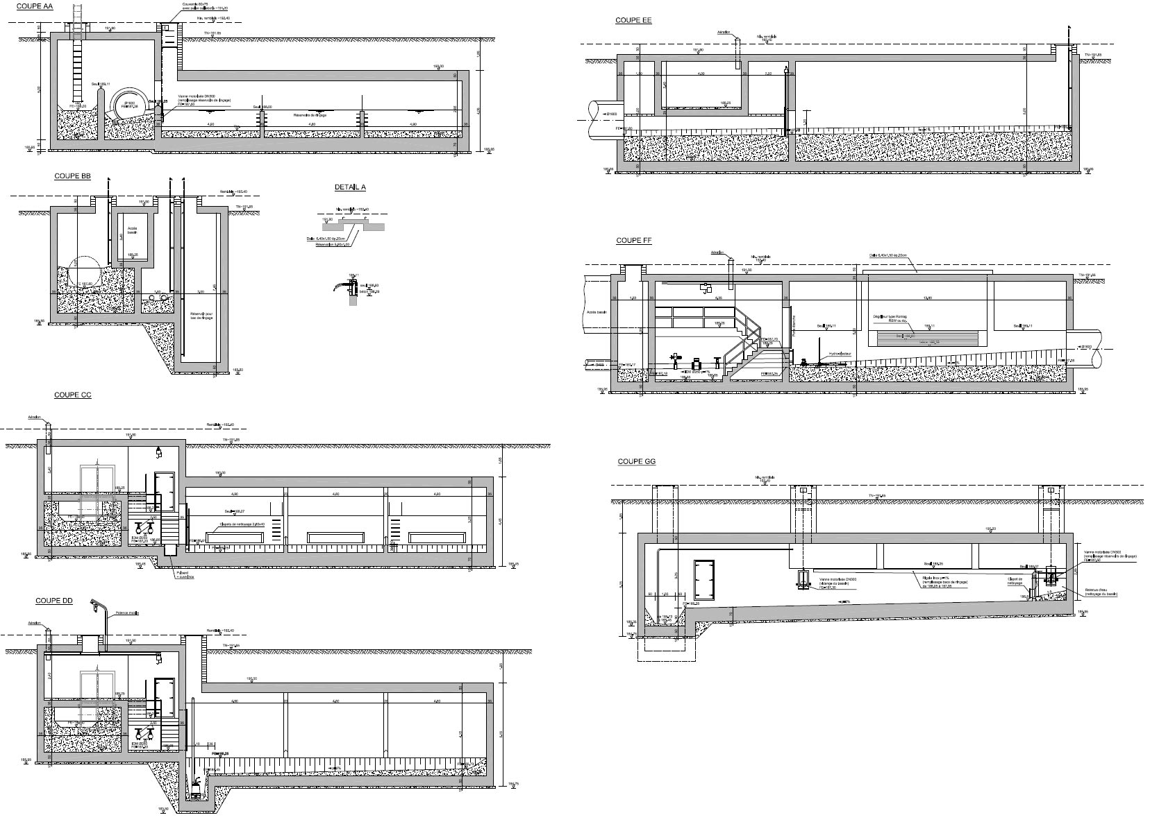
Plans de l'ouvrage

        


plan de localisation en format PDF