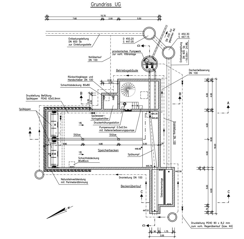
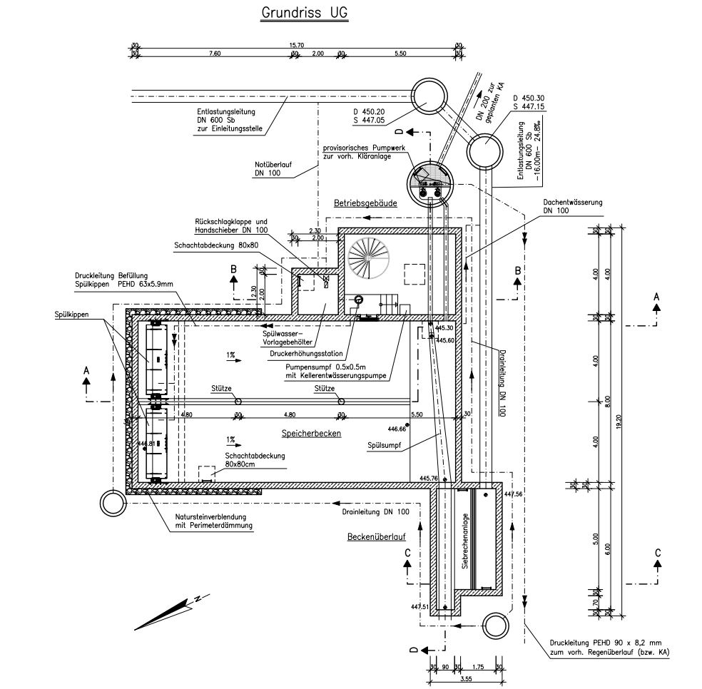
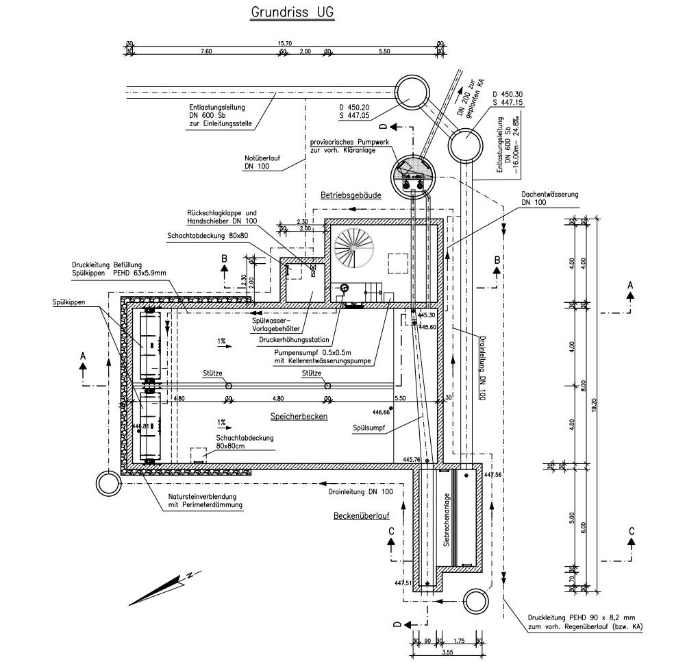
BO Derenbach

Bassin d'orage à Derenbach

plan de localisation en format PDF