Betriebsgebäude

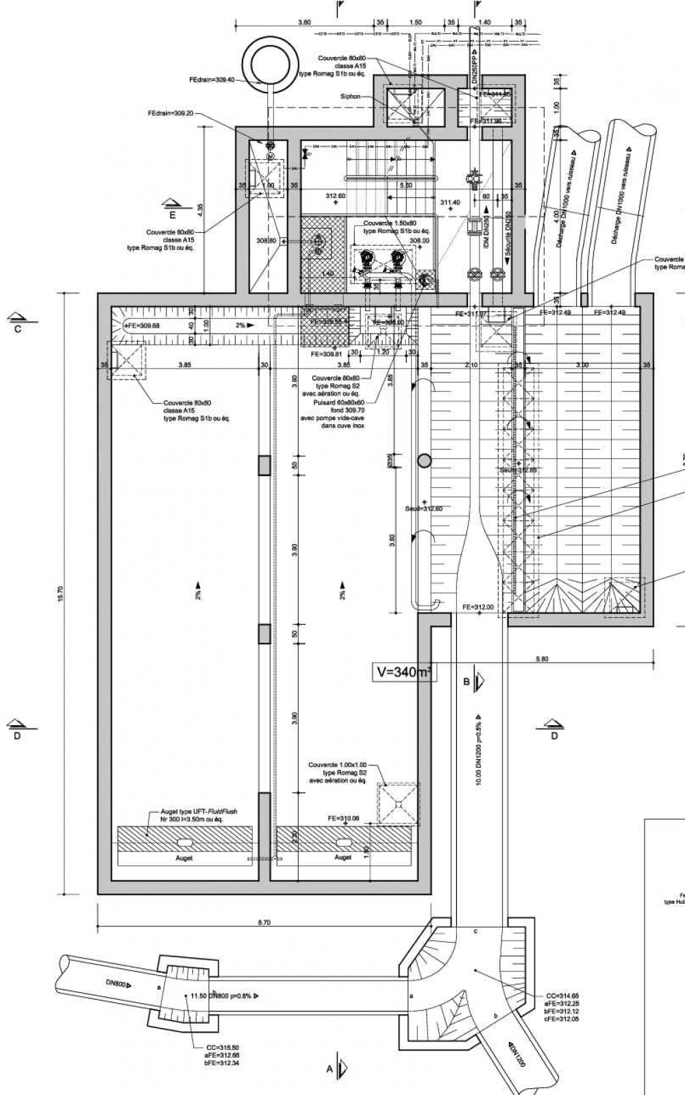
Regenüberlaufbecken mit Pumpwerk Mertzig-École

Lageplan im PDF-Format