Retour à la page d'accueil
  • Passer menu
  • Le Siden
    • Rôle du SIDEN
    • Nos services
    • Organigramme
  • Communes
  • Infos techniques
    • Collecte des eaux usées
    • Stations d'épuration mécaniques
    • Stations d'épuration biologiques
  • Téléchargement
    • Bilans sanitaires
    • Documents grand-public
    • Documents sécurisés
    • Documents pour communes-membres
    • Statuts
  • Vidange fosses privées
  • Contact
    • Contact
    • Plan d'accès
    • Demandes de prestations
    • Visites
    • Urgence
  • Urgence
  • Jobs
  • Visites
  • Liens
  • Demandes de prestations
  • Plan du site
  • Politique de confidentialité
  • Lanceur d'alerte
  • Recherche par mot clé
  • site en Français
  • Seite auf Deutsch
Retour vers l'accueil
open/close nav menu
Urgence
  • Le Siden
  • Communes
  • Infos techniques
  • Téléchargement
  • Vidange fosses privées
  • Contact
  • Urgence
  • Jobs
  • Visites
  • Liens
  • Demandes de prestations
  • Plan du site
  • Politique de confidentialité
  • Lanceur d'alerte
  • Recherche par mot clé
  • site en Français
  • Seite auf Deutsch
Bannière photo présentant l'ouvrage

Station Biologique De Niederfeulen

  • Historique
  • Construction et agrandissements
  • Pose de la 1ère pierre
  • Traitement des eaux usées
  • Plans

Plans

K E101B Lage 01 Vs1
K E407a Schlammbehandlung Vs1
K E407a Schlammbehandlung Vs2
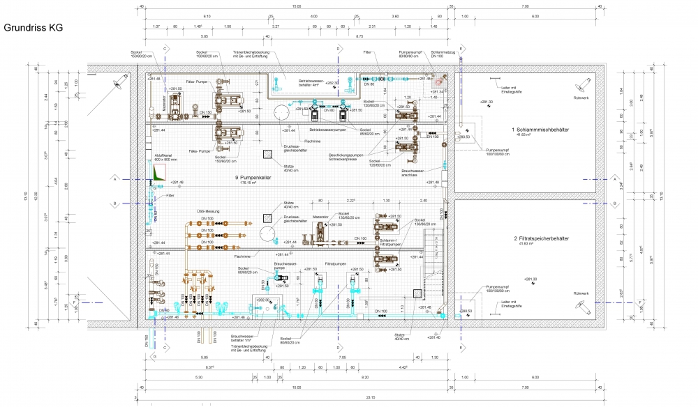
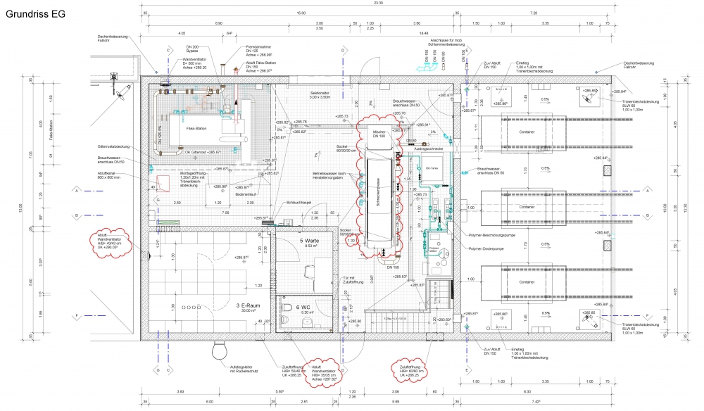
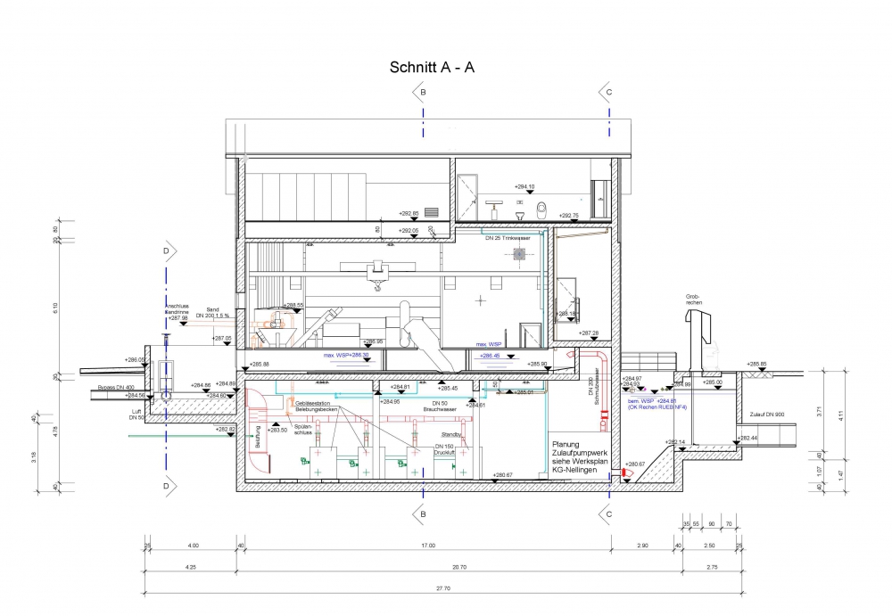
K P402 Betriebsgebäude H Vs1
K P402 Betriebsgebäude H Vs2
K P402 Betriebsgebäude H Vs3
K P402 Betriebsgebäude H Vs4
K P402 Betriebsgebäude H Vs5
K P402 Betriebsgebäude H Vs6
K P402 Betriebsgebäude H Vs7
K P405 Biocos Becken Vs1
K P405 Biocos Becken Vs2
K P405 Biocos Becken Vs3
Arrêter le défilement automatique du carousel Démarrer le défilement automatique K E101B Lage 01 Vs1K E407a Schlammbehandlung Vs1K E407a Schlammbehandlung Vs2K P402 Betriebsgebäude H Vs1K P402 Betriebsgebäude H Vs2K P402 Betriebsgebäude H Vs3K P402 Betriebsgebäude H Vs4K P402 Betriebsgebäude H Vs5K P402 Betriebsgebäude H Vs6K P402 Betriebsgebäude H Vs7K P405 Biocos Becken Vs1K P405 Biocos Becken Vs2K P405 Biocos Becken Vs3
     


plan de localisation en format PDF
Note d'information sur la protection des données
Nous utilisons 3 cookies pour vous garantir la meilleure expérience sur notre site. Ces cookies, nécessaires, doivent être activés pour assurer un fonctionnement optimal. Par ailleurs, vous pouvez autoriser des cookies à des fins statistiques   | Déclaration sur la protection des données
Cookies nécessaires au fonctionnement (indispensables)
(✚ d'informations)

Statistiques
(✚ d'informations)

🍪