Retour à la page d'accueil
  • Passer menu
  • Le Siden
    • Rôle du SIDEN
    • Nos services
    • Organigramme
  • Communes
  • Infos techniques
    • Collecte des eaux usées
    • Stations d'épuration mécaniques
    • Stations d'épuration biologiques
  • Téléchargement
    • Bilans sanitaires
    • Documents grand-public
    • Documents sécurisés
    • Documents pour communes-membres
    • Statuts
  • Vidange fosses privées
  • Contact
    • Contact
    • Plan d'accès
    • Demandes de prestations
    • Visites
    • Urgence
  • Urgence
  • Jobs
  • Visites
  • Liens
  • Demandes de prestations
  • Plan du site
  • Politique de confidentialité
  • Lanceur d'alerte
  • Recherche par mot clé
  • site en Français
  • Seite auf Deutsch
Retour vers l'accueil
open/close nav menu
Urgence
  • Le Siden
  • Communes
  • Infos techniques
  • Téléchargement
  • Vidange fosses privées
  • Contact
  • Urgence
  • Jobs
  • Visites
  • Liens
  • Demandes de prestations
  • Plan du site
  • Politique de confidentialité
  • Lanceur d'alerte
  • Recherche par mot clé
  • site en Français
  • Seite auf Deutsch
Bannière photo présentant l'ouvrage

Station d'épuration de Consdorf

  • Introduction
  • Détails et coûts
  • Photos
  • Plans
  • Documents

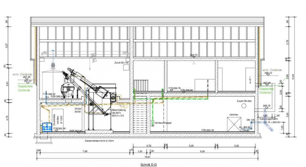
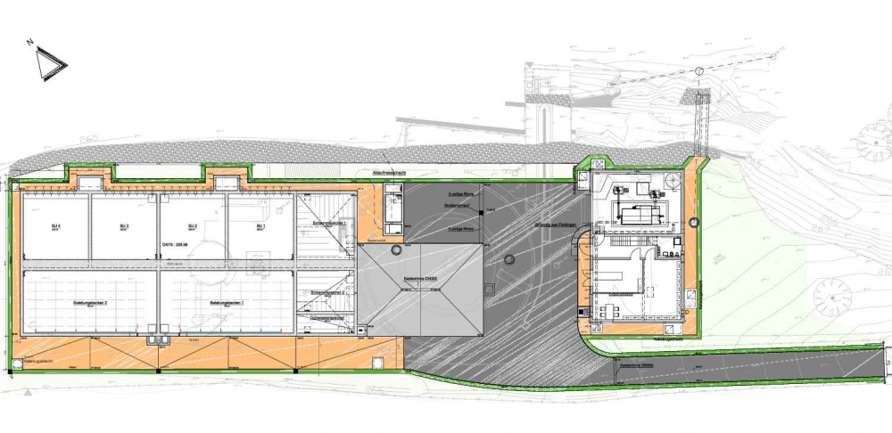
Plans


0925 A 01 E LA Lageplan 22.05.2019 Lageplan Oberflächen Vs1
0925 A 06 BW BG MG rev01 Vs1
0925 A 06 BW BG MG rev01 Vs2
0925 A 06 BW BG MG rev01 Vs3
0925 A 06 BW BG MG rev01 Vs4
0925 A 06 BW BG MG rev01 Vs5
Arrêter le défilement automatique du carousel Démarrer le défilement automatique 0925 A 01 E LA Lageplan 22.05.2019 Lageplan Oberflächen Vs10925 A 06 BW BG MG rev01 Vs10925 A 06 BW BG MG rev01 Vs20925 A 06 BW BG MG rev01 Vs30925 A 06 BW BG MG rev01 Vs40925 A 06 BW BG MG rev01 Vs5


plan de localisation en format PDF
Note d'information sur la protection des données
Nous utilisons 3 cookies pour vous garantir la meilleure expérience sur notre site. Ces cookies, nécessaires, doivent être activés pour assurer un fonctionnement optimal. Par ailleurs, vous pouvez autoriser des cookies à des fins statistiques   | Déclaration sur la protection des données
Cookies nécessaires au fonctionnement (indispensables)
(✚ d'informations)

Statistiques
(✚ d'informations)

🍪