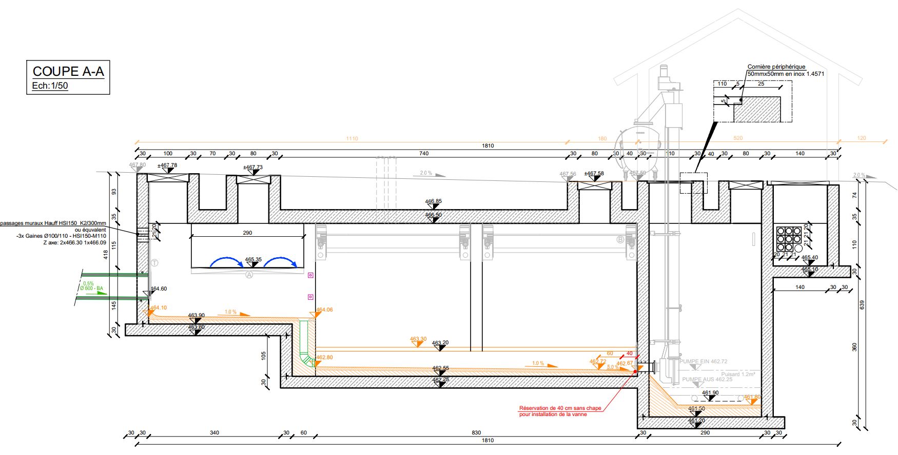
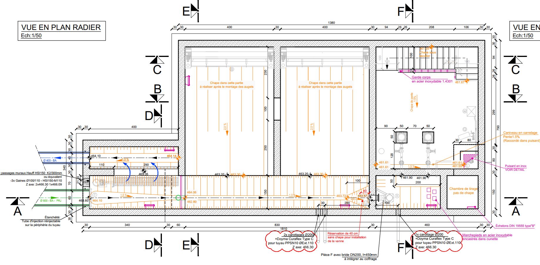
Bassin d'orage et station de pompage Kehmen

Bassin d'orage et station de pompage de Kehmen

plan de localisation en format PDF