Bannière photo présentant l'ouvrage

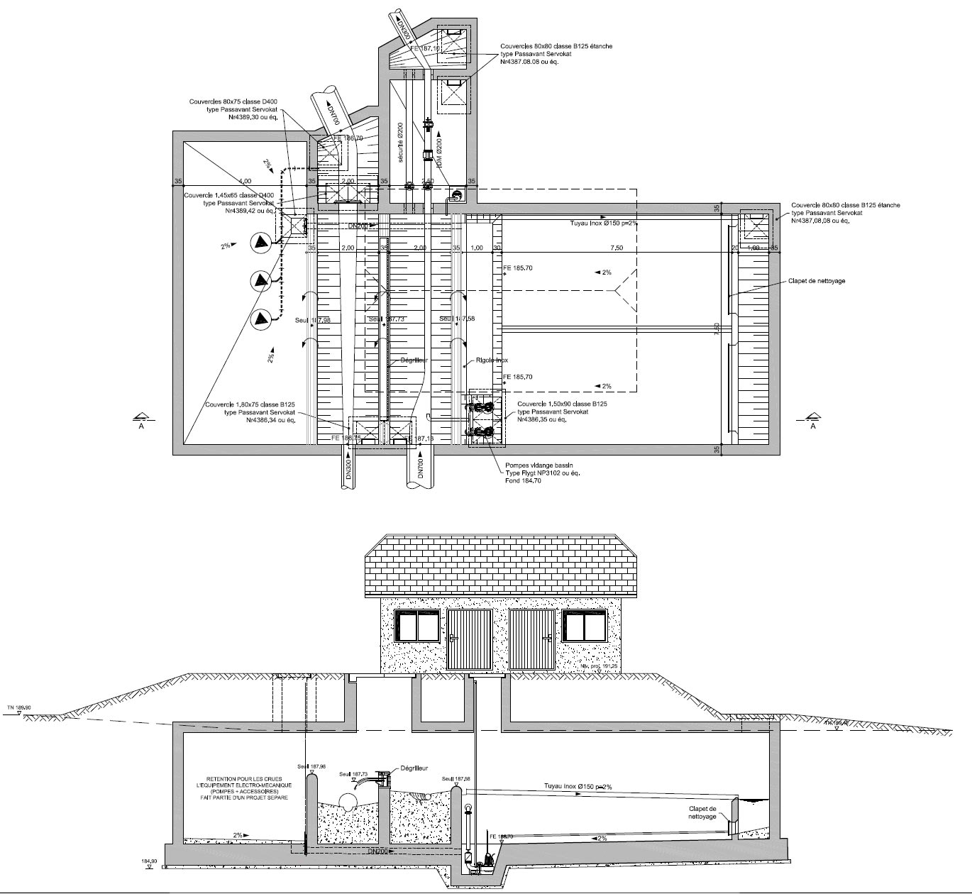
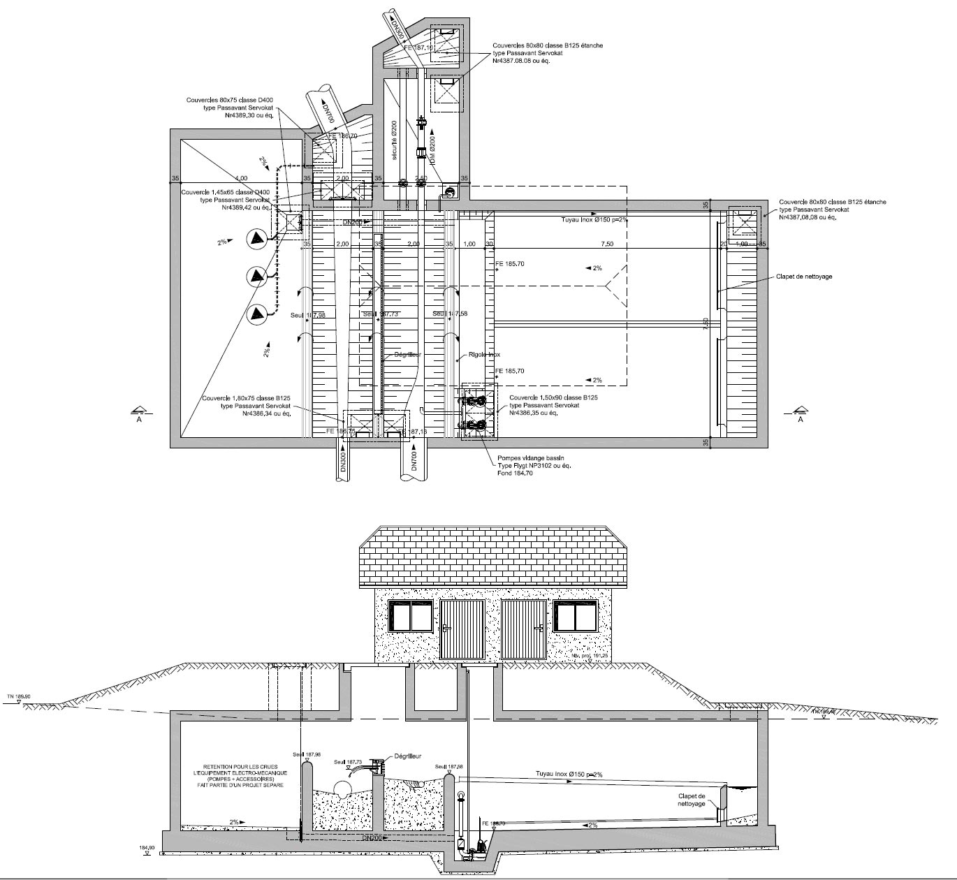
Bassin d'orage avec station de pompage Diekirch - Gilsdorf

Plans de l'ouvrage

         


plan de localisation en format PDF