Bannière photo présentant l'ouvrage

Bassin d'orage Diekirch - Al Schwemm

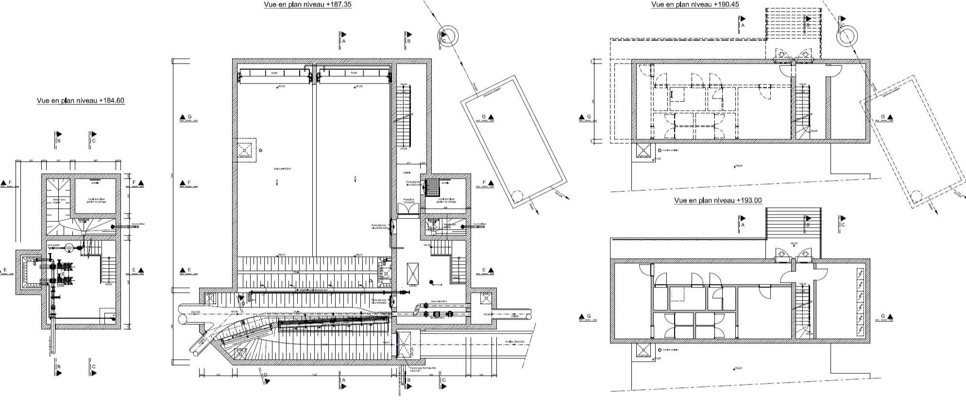
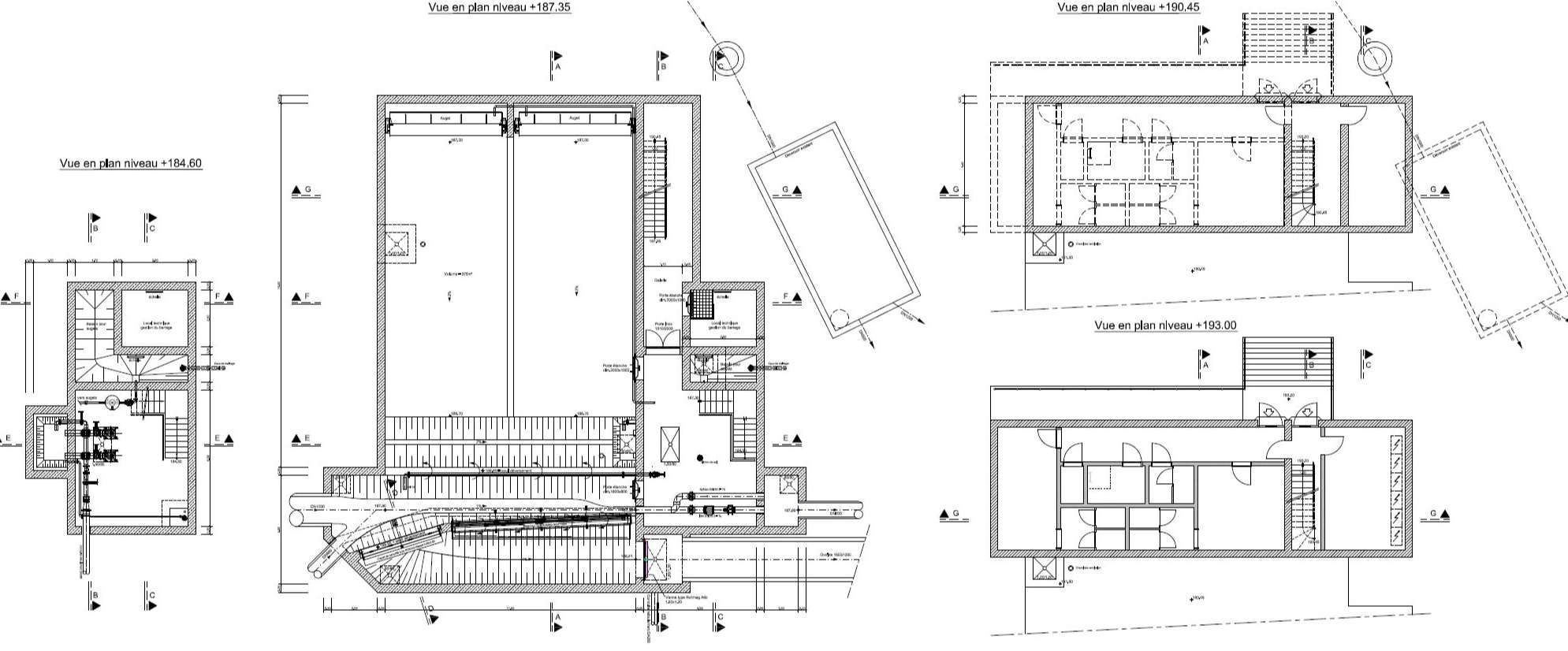
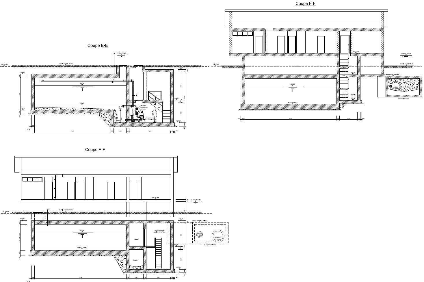
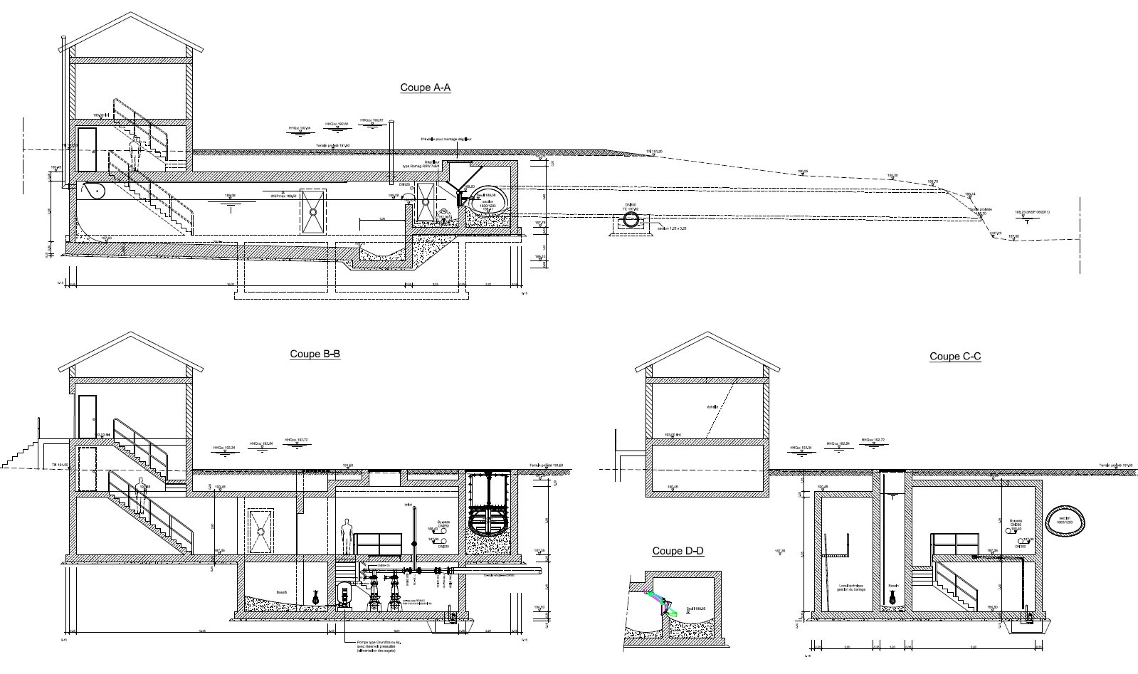
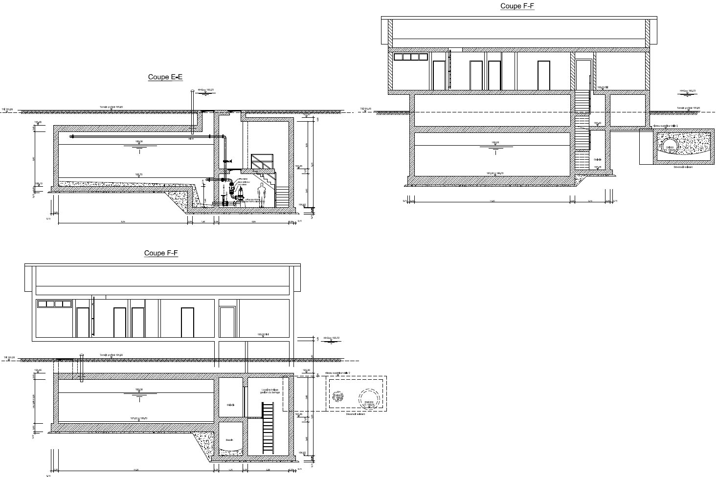
Plans de l'ouvrage

                              


plan de localisation en format PDF