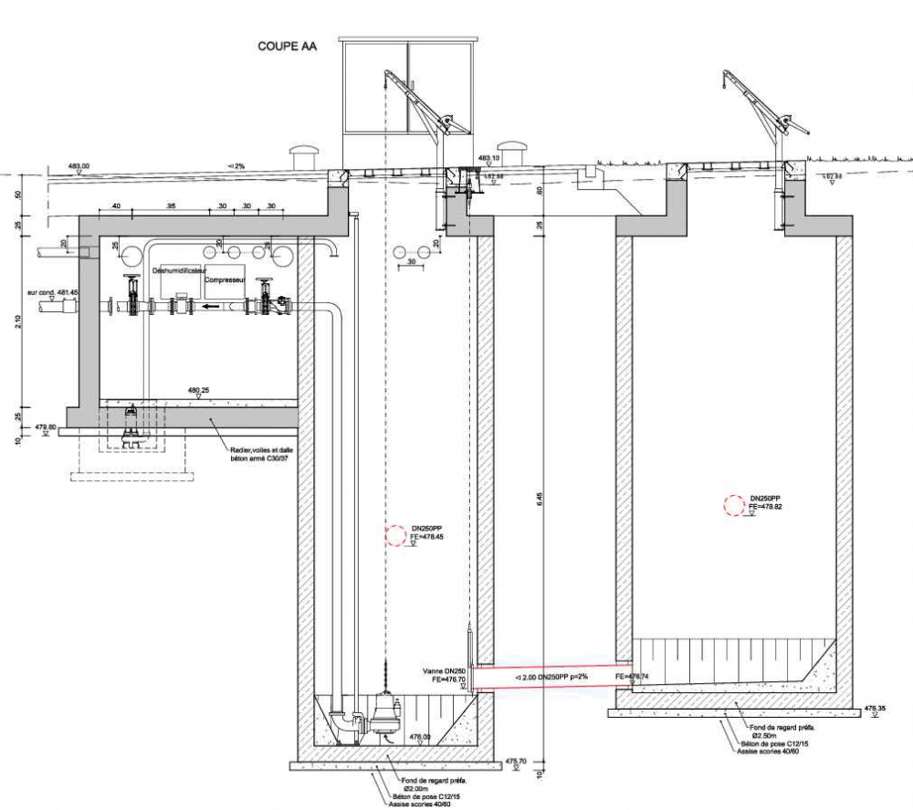
PW Féitsch

Pumpwerk in Féitsch(Allerborn)