Fotobanner zur Präsentation der Kläranlage

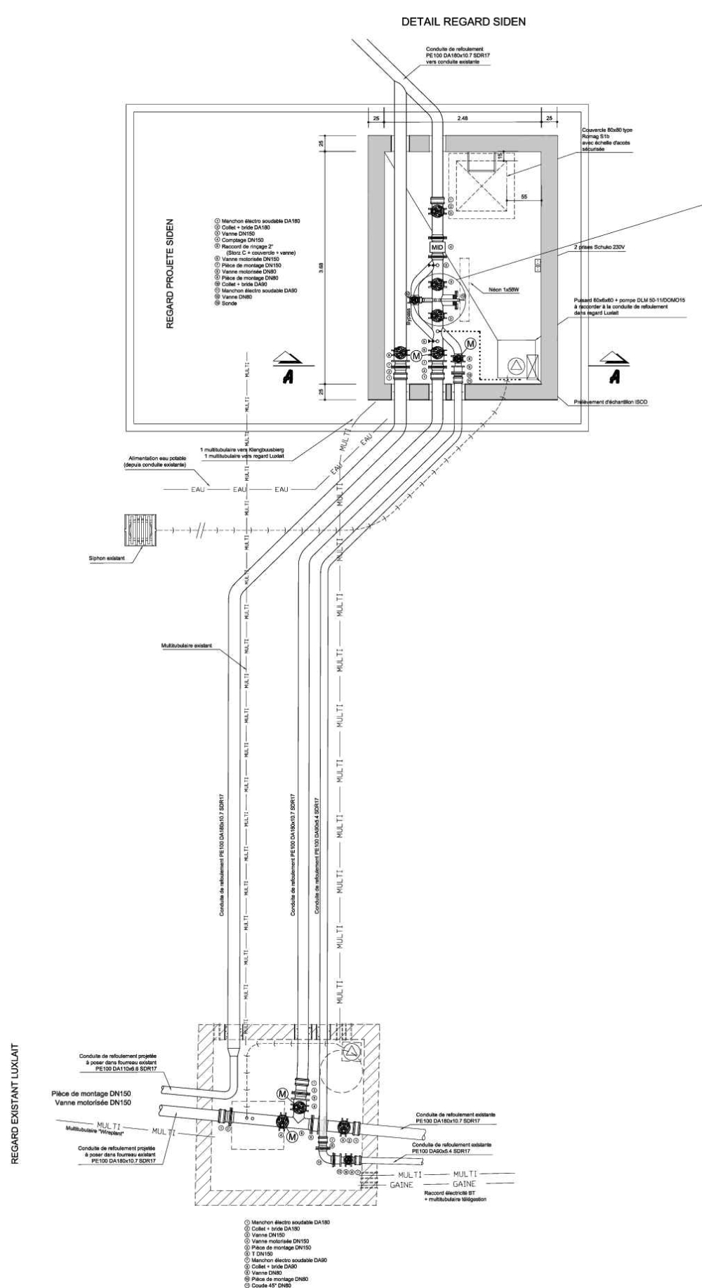
Schieberschacht Roost Luxlait