Passer menu
Le Siden
Rôle du SIDEN
Nos services
Organigramme
Communes
Infos techniques
Collecte des eaux usées
Stations d'épuration mécaniques
Stations d'épuration biologiques
Téléchargement
Bilans sanitaires
Documents grand-public
Documents sécurisés
Documents pour communes-membres
Statuts
Vidange fosses privées
Contact
Contact
Plan d'accès
Demandes de prestations
Visites
Urgence
Urgence
Jobs
Visites
Liens
Demandes de prestations
Plan du site
Politique de confidentialité
Le Siden
Communes
Infos techniques
Téléchargement
Vidange fosses privées
Contact
Urgence
Jobs
Visites
Liens
Demandes de prestations
Plan du site
Politique de confidentialité
Bassin d'orage de Welsdorf
Introduction
Photos
Plans
Plans
K E401F Vs1
K E401F Vs1
K E401F Vs2
K E401F Vs2
K E401F Vs3
K E401F Vs3
K E401F Vs4
K E401F Vs4
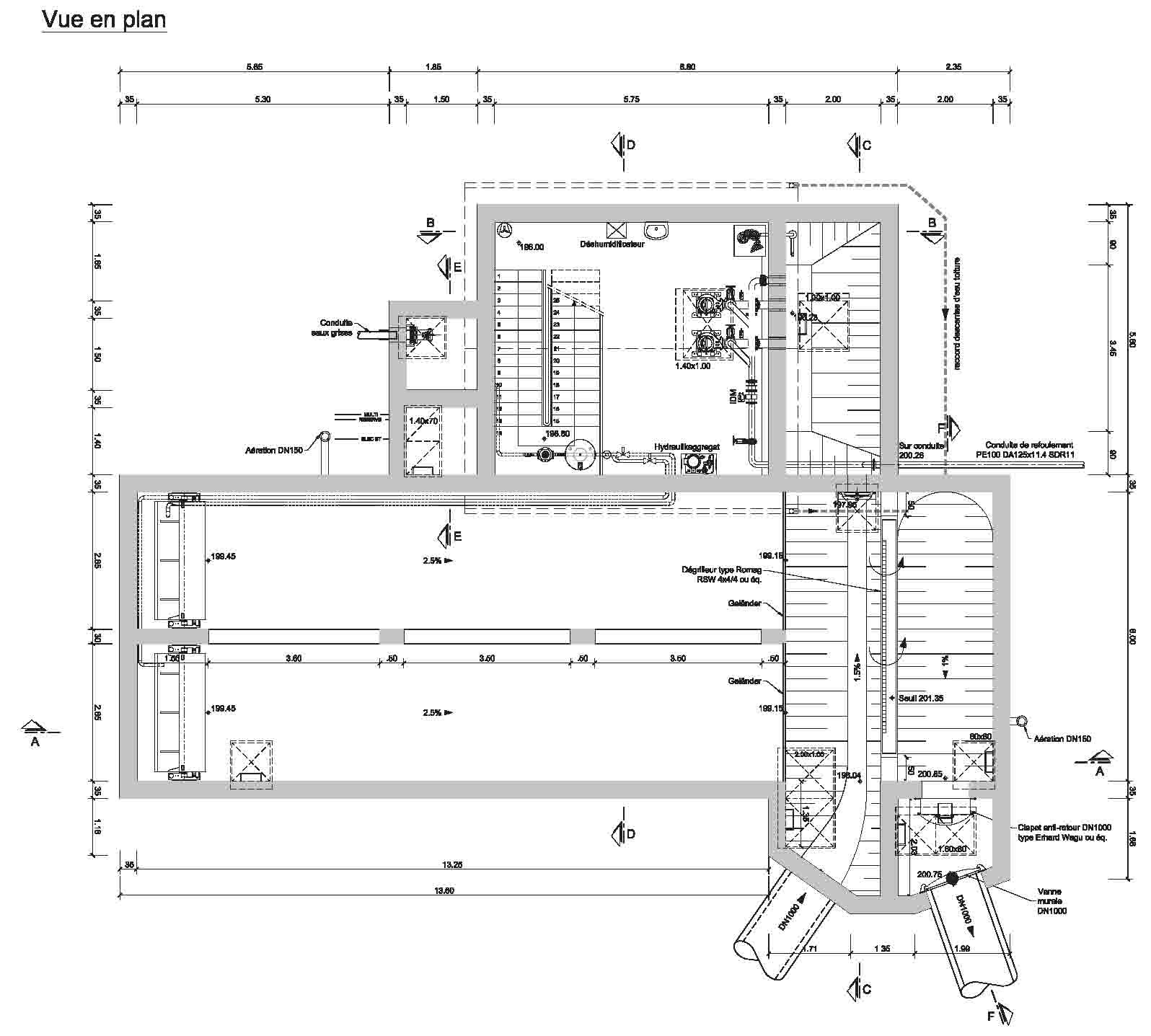
Vue SPC en SPC plan
Vue SPC en SPC plan
Vue SPC d SPC ensemble SPC du SPC projet Vs1
Vue SPC d SPC ensemble SPC du SPC projet Vs1