Menü übergehen
Der Siden
Rolle des SIDEN
Unsere Abteilungen
Organigramm
Gemeinden
Technische Infos
Abwassersammlung
Mechanische Kläranlagen
Biologische Kläranlagen
Download-Portal
Bilanz der Abwasserreinigung
Allgemein zugängliche Unterlagen
Geschützte Unterlagen
Unterlagen für Mitgliedsgemeinden
Statuten
Entleerung von Hauskläranlagen
Kontakt
Kontakt
Anfahrtsplan
Dienstleistungsantrag
Besichtigungen
Notfall
Notfall
Jobs
Besichtigungen
Links
Dienstleistungsantrag
Sitemap
Datenschutz
Der Siden
Gemeinden
Technische Infos
Download-Portal
Entleerung von Hauskläranlagen
Kontakt
Notfall
Jobs
Besichtigungen
Links
Dienstleistungsantrag
Sitemap
Datenschutz
Regenüberlaufbecken Welsdorf
Einführung
Fotos
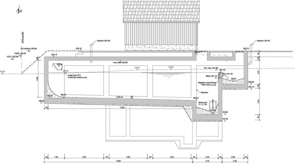
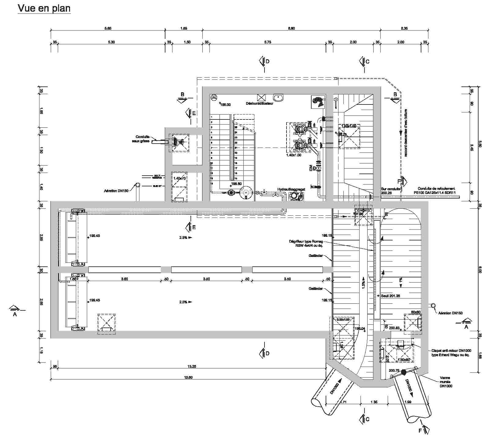
Pläne
Pläne
K E401F Vs1
K E401F Vs1
K E401F Vs2
K E401F Vs2
K E401F Vs3
K E401F Vs3
K E401F Vs4
K E401F Vs4
Vue SPC en SPC plan
Vue SPC en SPC plan
Vue SPC d SPC ensemble SPC du SPC projet Vs1
Vue SPC d SPC ensemble SPC du SPC projet Vs1