Fotobanner zur Präsentation der Kläranlage

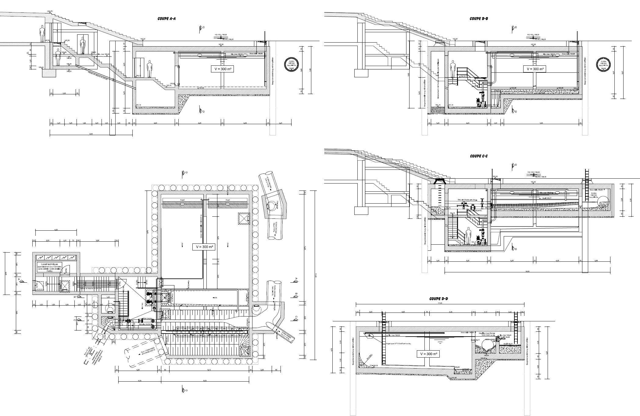
Regenüberlaufbecken mit Pumpwerk "Monopol"

Pläne des Bauwerkes

        


Lageplan im PDF-Format