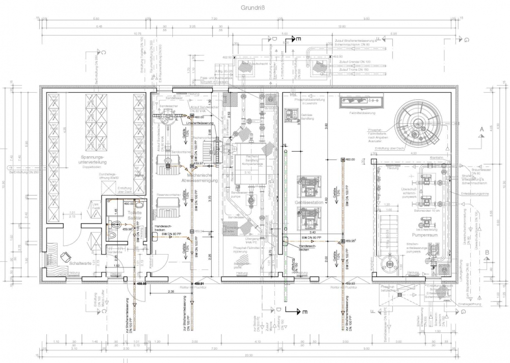
KA Troine

Biologische Kläranlage in Trotten