Bannière photo présentant l'ouvrage

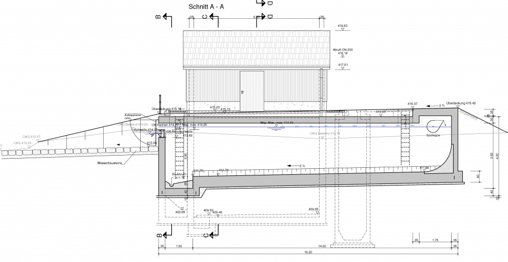
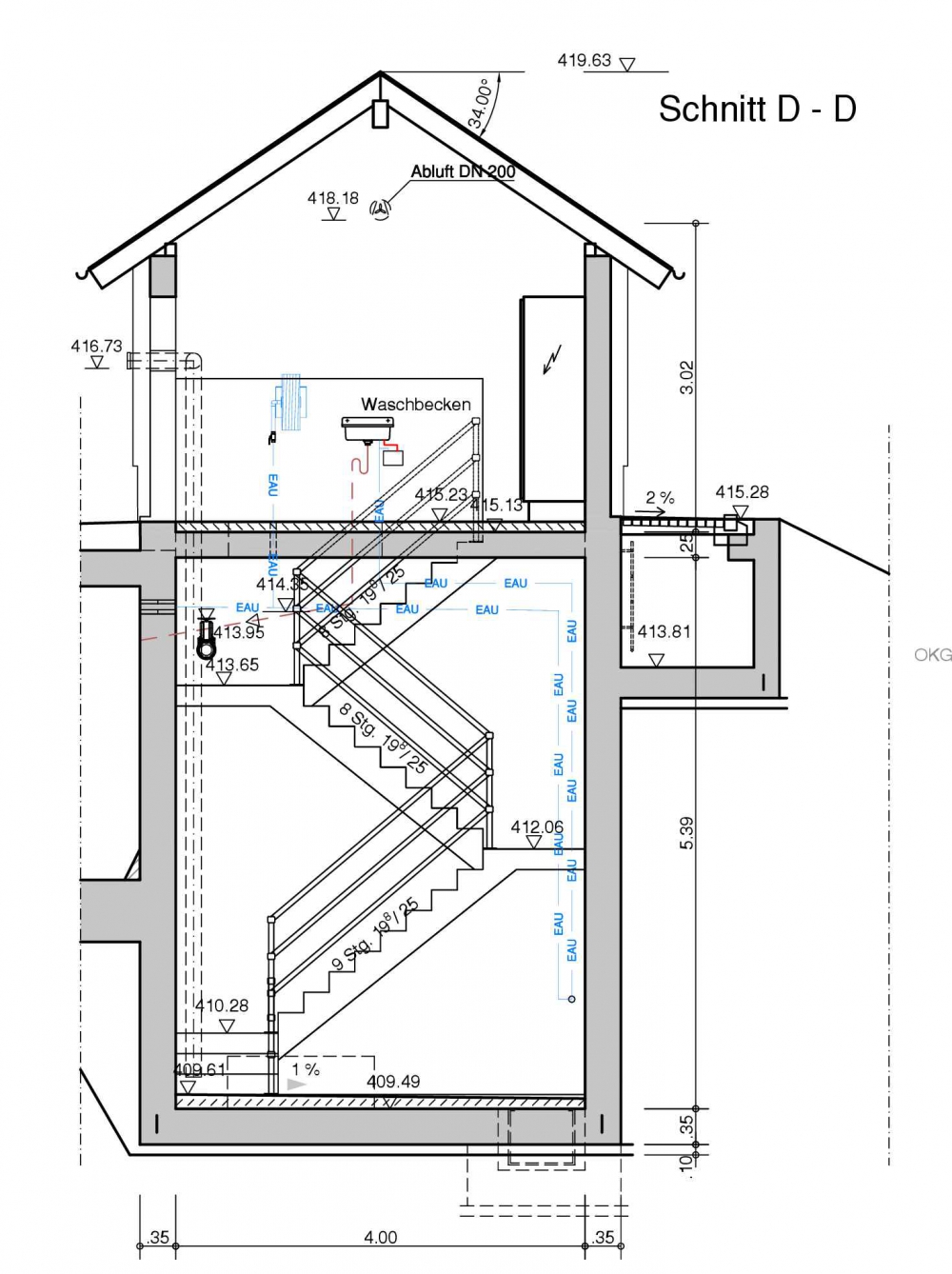
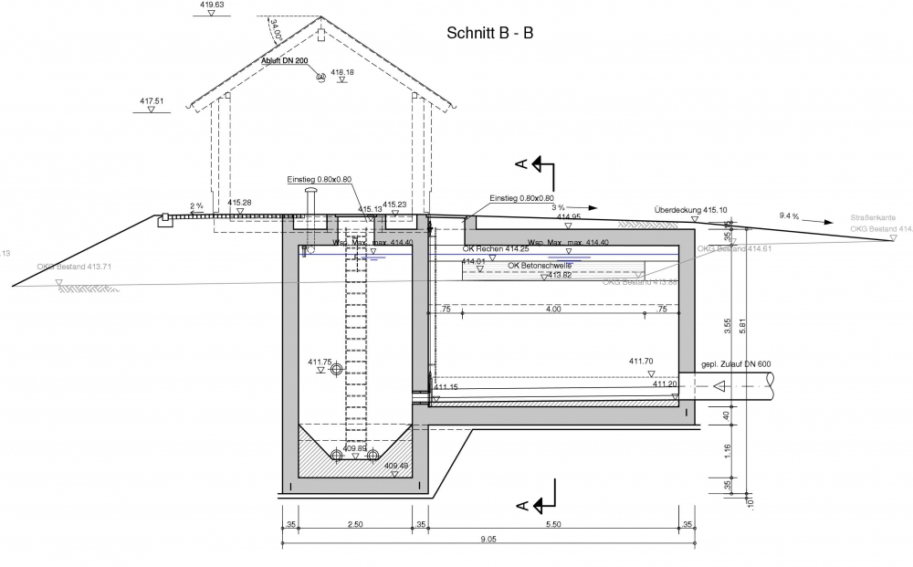
Bassin d'orage avec station de pompage de Emeschbach

plan de localisation en format PDF