zurück zur Homepage
  • Menü übergehen
  • Der Siden
    • Rolle des SIDEN
    • Unsere Abteilungen
    • Organigramm
  • Gemeinden
  • Technische Infos
    • Abwassersammlung
    • Mechanische Kläranlagen
    • Biologische Kläranlagen
  • Download-Portal
    • Bilanz der Abwasserreinigung
    • Allgemein zugängliche Unterlagen
    • Geschützte Unterlagen
    • Unterlagen für Mitgliedsgemeinden
    • Statuten
  • Entleerung von Hauskläranlagen
  • Kontakt
    • Kontakt
    • Anfahrtsplan
    • Dienstleistungsantrag
    • Besichtigungen
    • Notfall
  • Notfall
  • Jobs
  • Besichtigungen
  • Links
  • Dienstleistungsantrag
  • Sitemap
  • Datenschutz
  • Whistleblower
  • Suche
  • site en Français
  • Seite auf Deutsch
Link mobile zurück zur Homepage
open/close nav menu
Urgence
  • Der Siden
  • Gemeinden
  • Technische Infos
  • Download-Portal
  • Entleerung von Hauskläranlagen
  • Kontakt
  • Notfall
  • Jobs
  • Besichtigungen
  • Links
  • Dienstleistungsantrag
  • Sitemap
  • Datenschutz
  • Whistleblower
  • Suche
  • site en Français
  • Seite auf Deutsch
Fotobanner zur Präsentation der Kläranlage

Regenüberlaufbecken und Pumpwerk Arsdorf

  • Einleitung
  • Details und Kosten
  • Fotos
  • Pläne

Pläne


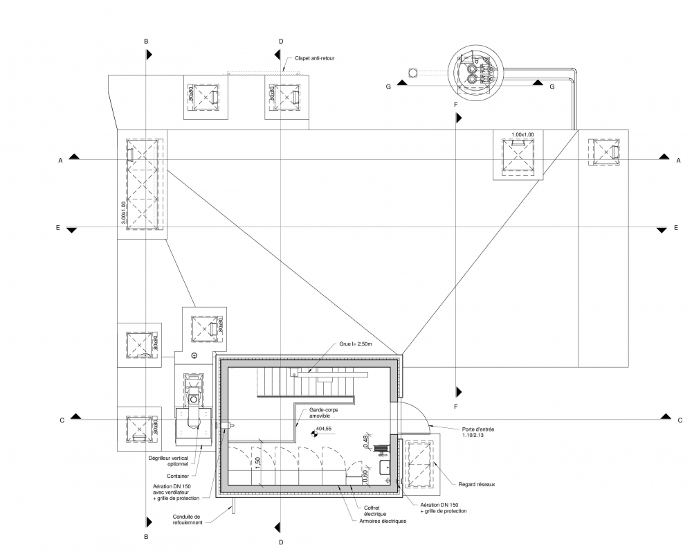
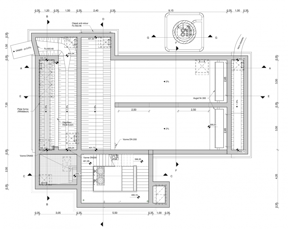
Draufsicht Untergeschoss
Draufsicht Erdgeschoss
3D Model
Schnitt A-A
Schnitt B-B
SChnitt D-D
Schnitt E-E
Den Bildlauf des Karussells anhalten Starten Sie den Bildlauf im Karussell Draufsicht UntergeschossDraufsicht Erdgeschoss3D ModelSchnitt A-ASchnitt B-BSChnitt D-DSchnitt E-E
              
Datenschutzhinweis
Wir verwenden 3 Cookies, um Ihnen die bestmögliche Erfahrung auf unserer Website zu garantieren. Diese notwendigen Cookies müssen aktiviert sein, um einen optimalen Betrieb zu gewährleisten. Außerdem können Sie Cookies für statistische Zwecke aktivieren.   | Datenschutzerklärung
Cookies für den Betrieb erforderlich (unverzichtbar)
(✚ mehr Informationen)

Statistiken
(✚ mehr Informationen)

🍪