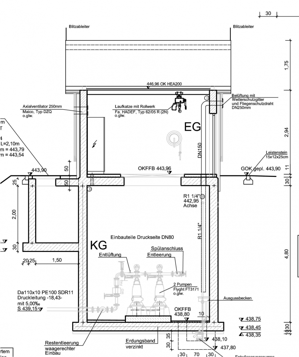
Betriebsgebäude

Regenüberlaufbecken mit Pumpwerk Gralingen

Lageplan im PDF-Format