Fotobanner zur Präsentation der Kläranlage

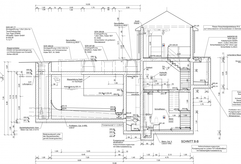
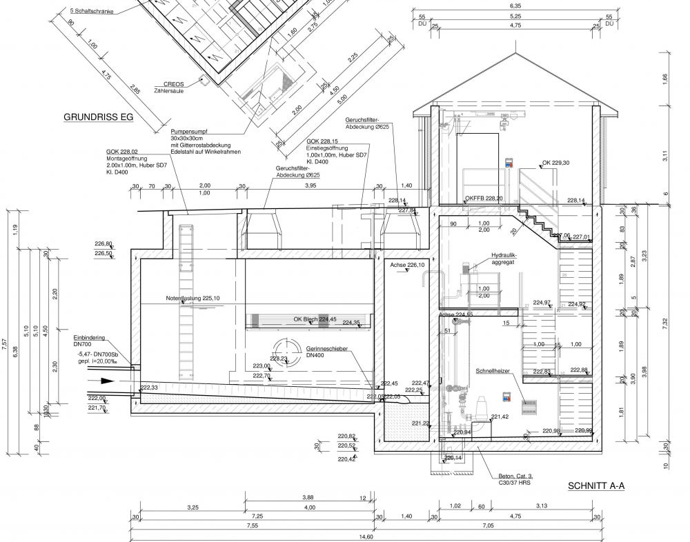
Regenüberlaufbecken mit Pumpwerk von Stolzembourg

Lageplan im PDF-Format