zurück zur Homepage
  • Menü übergehen
  • Der Siden
    • Rolle des SIDEN
    • Unsere Abteilungen
    • Organigramm
  • Gemeinden
  • Technische Infos
    • Abwassersammlung
    • Mechanische Kläranlagen
    • Biologische Kläranlagen
  • Download-Portal
    • Bilanz der Abwasserreinigung
    • Allgemein zugängliche Unterlagen
    • Geschützte Unterlagen
    • Unterlagen für Mitgliedsgemeinden
    • Statuten
  • Entleerung von Hauskläranlagen
  • Kontakt
    • Kontakt
    • Anfahrtsplan
    • Dienstleistungsantrag
    • Besichtigungen
    • Notfall
  • Notfall
  • Jobs
  • Besichtigungen
  • Links
  • Dienstleistungsantrag
  • Sitemap
  • Datenschutz
  • Whistleblower
  • Suche
  • site en Français
  • Seite auf Deutsch
Link mobile zurück zur Homepage
open/close nav menu
Urgence
  • Der Siden
  • Gemeinden
  • Technische Infos
  • Download-Portal
  • Entleerung von Hauskläranlagen
  • Kontakt
  • Notfall
  • Jobs
  • Besichtigungen
  • Links
  • Dienstleistungsantrag
  • Sitemap
  • Datenschutz
  • Whistleblower
  • Suche
  • site en Français
  • Seite auf Deutsch
Fotobanner zur Präsentation der Kläranlage

Kläranlage Consdorf

  • Einleitung
  • Details und Kosten
  • Fotos
  • Pläne
  • Unterlagen

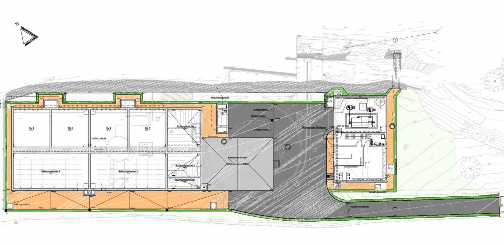
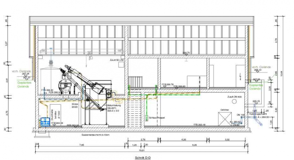
Pläne


0925 A 01 E LA Lageplan 22.05.2019 Lageplan Oberflächen Vs1
0925 A 06 BW BG MG rev01 Vs1
0925 A 06 BW BG MG rev01 Vs2
0925 A 06 BW BG MG rev01 Vs3
0925 A 06 BW BG MG rev01 Vs4
0925 A 06 BW BG MG rev01 Vs5
Den Bildlauf des Karussells anhalten Starten Sie den Bildlauf im Karussell 0925 A 01 E LA Lageplan 22.05.2019 Lageplan Oberflächen Vs10925 A 06 BW BG MG rev01 Vs10925 A 06 BW BG MG rev01 Vs20925 A 06 BW BG MG rev01 Vs30925 A 06 BW BG MG rev01 Vs40925 A 06 BW BG MG rev01 Vs5
Lageplan im PDF-Format
Datenschutzhinweis
Wir verwenden 3 Cookies, um Ihnen die bestmögliche Erfahrung auf unserer Website zu garantieren. Diese notwendigen Cookies müssen aktiviert sein, um einen optimalen Betrieb zu gewährleisten. Außerdem können Sie Cookies für statistische Zwecke aktivieren.   | Datenschutzerklärung
Cookies für den Betrieb erforderlich (unverzichtbar)
(✚ mehr Informationen)

Statistiken
(✚ mehr Informationen)

🍪