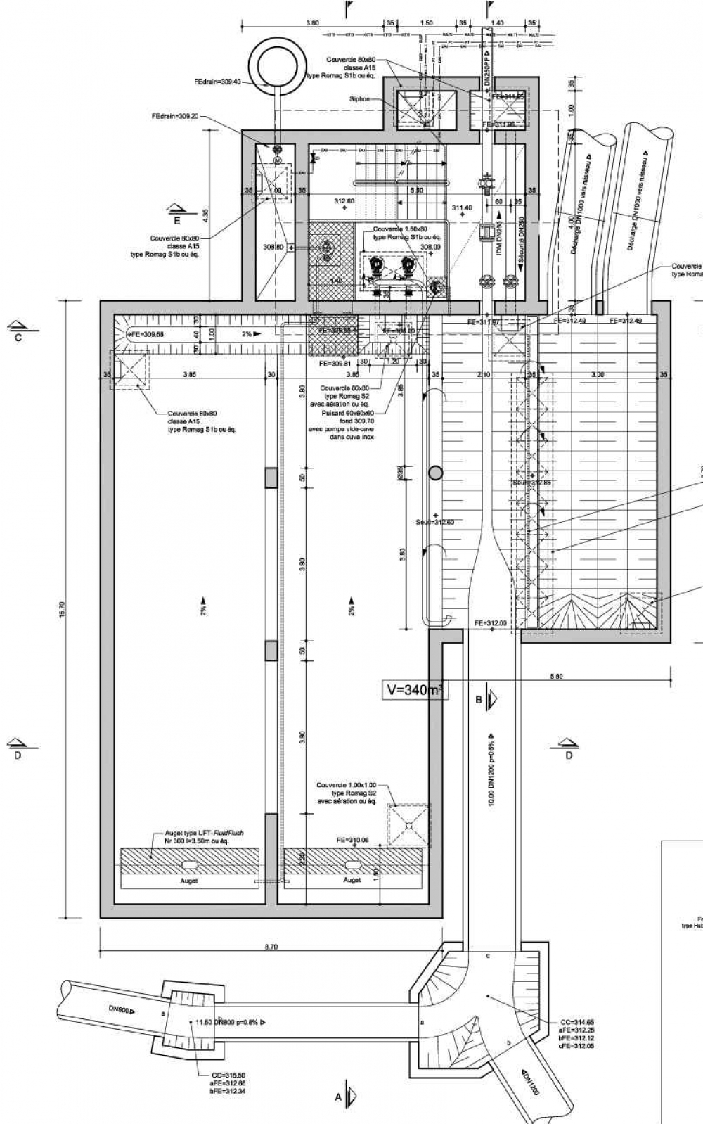
Bâtiment technique

Bassin d'orage et station de pompage Mertzig-École

plan de localisation en format PDF