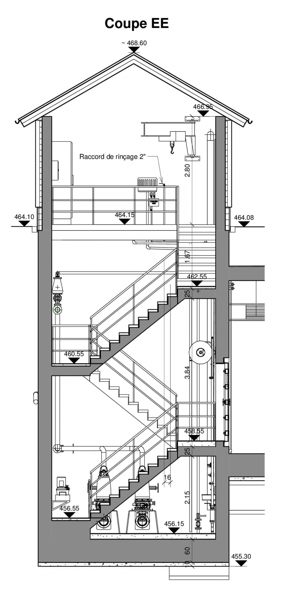
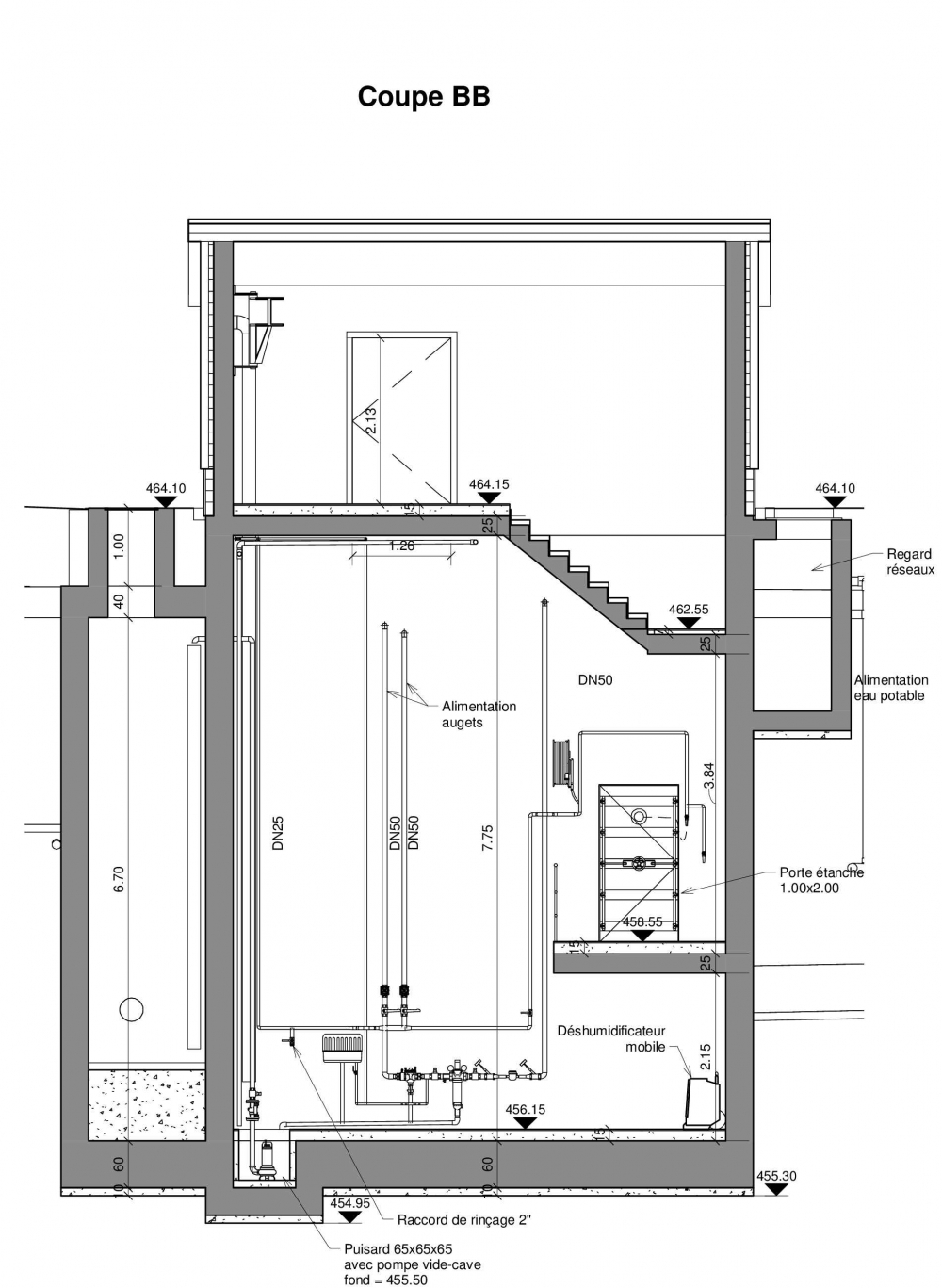
Bassin d'orage avec station de pompage Hamiville

Bassin d'orage avec station de pompage de Hamiville

plan de localisation en format PDF