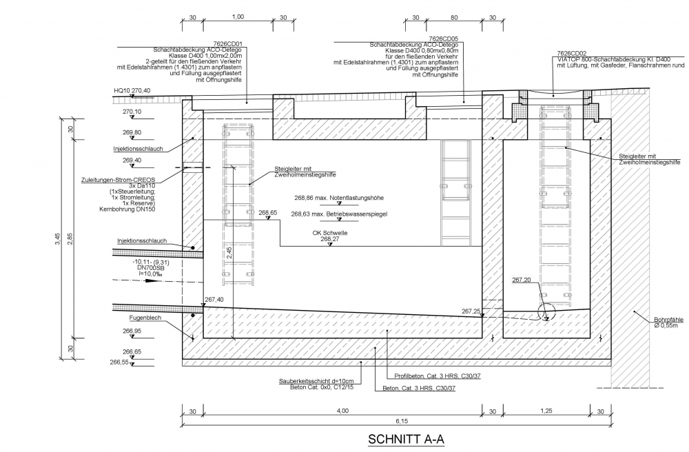
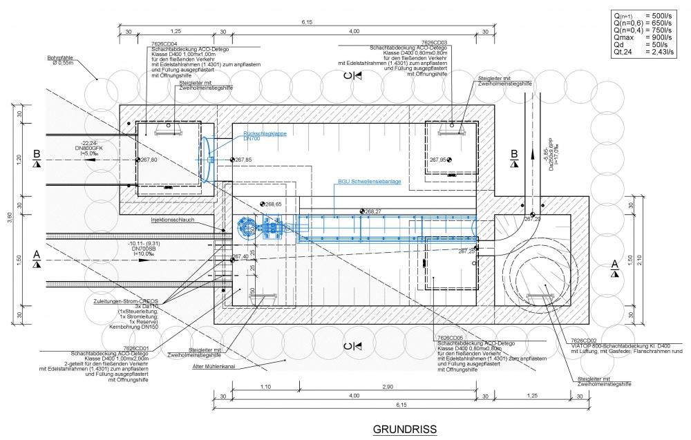
Bannière photo présentant l'ouvrage

Déversoir de Larochette 5 Mersch