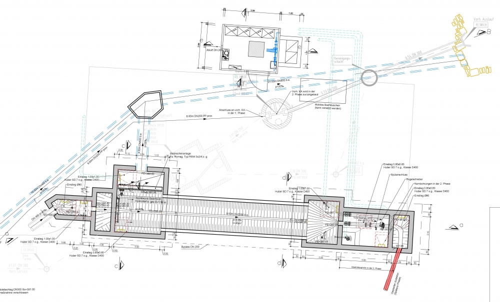
Bassin d'orage de Sassel

plan de localisation en format PDF